Maison neuve à
Châteauroux (36000) Référence : KG2360514_9

Prix du projet : Maison avec Terrain

prix 299 500 €

  • 5 pièces
  • 4 chambres
  • Surface maison 110 m2

Maison T5 (110 m²) à vendre à Châteauroux
EMPLACEMENT PRIVILÉGIÉ - MAISON 5 PIÈCES NEUVE
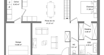
En vente bénéficiant d'un emplacement d'exception dans Châteauroux (36000), Maisons Bruno Petit MJB Châteauroux vous propose cette maison de 5 pièces de 110 m² et de 1 125 m² de terrain. Son intérieur compte quatre chambres, une cuisine et deux salles de bains.
C'est une maison de 2 niveaux. Elle est neuve.
La maison est située dans un quartier attractif. Des écoles du primaire et du secondaire se trouvent à moins de 10 minutes à pied, tout comme une crèche. Côté transports, il y a la gare Châteauroux juste à côté. L'autoroute A20 et la nationale N151 sont accessibles à moins de 5 km. On trouve une bibliothèque, des boulangeries, des commerces, deux supermarchés, un bureau de poste et des épiceries à proximité du bien.
Elle est proposée à l'achat pour 299 500 €.
Prenez contact avec notre agence (GRIMAUD Kevin : *6-22-14-89-67) pour tout renseignement sur la maison. Maisons Bruno Petit MJB Châteauroux est là pour vous accompagner dans tous vos projets immobiliers.

Mentions légales

Terrain proposé par un partenaire foncier selon disponibilités et autorisation de publicité au prix de 67 500 €. Hors droit d'enregistrement et frais de notaire. Terrain + Maison proposés au prix de 232 000 € (Hors branchements et raccordements, papiers peints, peintures, revêtement de sol dans les chambres. Tarif modifiable sans préavis). Etiquette énergie : A. Différents modèles disponibles pour ce terrain. Assurances et garanties du constructeur (RC professionnelle, décennale, dommage ouvrage, garantie de remboursement de l'acompte, livraison à prix et délai convenu) : https://www.maisons-brunopetit.fr/mentions-legales/.

Contactez l'agence de Châteauroux

02 54 22 66 24

    * Champs obligatoires

    Vos informations sont traitées par HEXAOM et transmises à un conseiller commercial qui vous contactera afin de répondre à votre demande. Les plans et images présentés sur notre site sont la propriété d’HEXAOM et ne peuvent pas être reproduits sans son accord. Pour retrouver notre politique de protection des données personnelles et exercer vos droits conformément à la « loi informatique et liberté » cliquez-ici.