Maison neuve à
Châteauroux (36000) Référence : FR2330845_13

Prix du projet : Maison avec Terrain

prix 390 000 €

  • 6 pièces
  • 6 chambres
  • Surface maison 176 m2

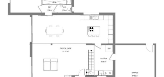
🏡 Maison neuve 8 pièces - 176 m² habitables - Châteauroux
📍 À Châteauroux, dans un quartier résidentiel, découvrez ce projet de maison neuve, implanté sur un terrain idéalement situé à proximité des réseaux de bus 🚌.
________________________________________
✨ Une maison familiale aux volumes généreux
Conçue pour offrir espace et confort, cette maison personnalisable se compose de :
6 chambres, dont une suite parentale
Salle de bain et salle d'eau
Grande pièce de vie lumineuse avec cuisine personnalisable
Cellier
Garage
Patio, apportant luminosité et convivialité
✨ Les volumes sont généreux et optimisés, pour un confort au quotidien et une excellente performance énergétique.
________________________________________
🏗️ Qualité de construction & performance
Cette maison répond aux dernières exigences en matière de confort et d'économies d'énergie.
________________________________________
🔧 Prestations de qualité
✔ Chauffage, eau chaude et VMC Atlantic
✔ Volets roulants motorisés et centralisés avec domotique
✔ Sanitaires Jacob Delafon
✔ Portes intérieures gravées
✔ Menuiseries PVC / mixtes / aluminium
✔ Construction conforme à la RE 2020
________________________________________
📜 Projet réalisé sous Contrat de Construction de Maison Individuelle (CCMI - loi de 1990), garantissant une sécurité maximale.
🤝 Maisons Brunon Petit, constructeur local reconnu depuis 47 ans, vous accompagne pour concevoir une maison sur mesure, adaptée à vos attentes et à votre mode de vie.
📞 N'attendez plus !
Contactez Franck RUBIO
📱 °6 30 49 64 43 (SMS acceptés)
pour plus d'informations et donner vie à votre projet personnalisé.

Mentions légales

Terrain proposé par un partenaire foncier selon disponibilités et autorisation de publicité au prix de 44 460 €. Hors droit d'enregistrement et frais de notaire. Terrain + Maison proposés au prix de 345 540 € (Hors branchements et raccordements, papiers peints, peintures, revêtement de sol dans les chambres. Tarif modifiable sans préavis). Etiquette énergie : A. Différents modèles disponibles pour ce terrain. Assurances et garanties du constructeur (RC professionnelle, décennale, dommage ouvrage, garantie de remboursement de l'acompte, livraison à prix et délai convenu) : https://www.maisons-brunopetit.fr/mentions-legales/.

Contactez l'agence de Châteauroux

02 54 22 66 24

    * Champs obligatoires

    Vos informations sont traitées par HEXAOM et transmises à un conseiller commercial qui vous contactera afin de répondre à votre demande. Les plans et images présentés sur notre site sont la propriété d’HEXAOM et ne peuvent pas être reproduits sans son accord. Pour retrouver notre politique de protection des données personnelles et exercer vos droits conformément à la « loi informatique et liberté » cliquez-ici.