Maison neuve à
Châteauroux (36000) Référence : TM2392082_1

Prix du projet : Maison avec Terrain

prix 172 900 €

  • 4 pièces
  • 3 chambres
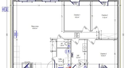
  • Surface maison 85 m2

Châteauroux : maison de 4 pièces (85 m²) à vendre
IDÉALEMENT SITUÉE - MAISON 4 PIÈCES NEUVE
En vente : ayez le coup de coeur pour, idéalement située dans Châteauroux (36000), cette maison de 4 pièces de plain-pied de 85 m². Son intérieur dispose de trois chambres, d'une cuisine et d'une salle de bains.
Le terrain de la propriété s'étend sur 620 m².
Cette maison est neuve.
La maison se situe dans un secteur convoité. Des écoles du primaire et du secondaire sont implantées à moins de 10 minutes à pied, tout comme une structure d'accueil pour les tout-petits. Niveau transports, on trouve la gare Châteauroux dans un rayon de 1 km. L'autoroute A20 et la nationale N151 sont accessibles à moins de 5 km. Il y a une bibliothèque, des boulangeries, des commerces, deux supermarchés, trois boucheries-charcuteries et des épiceries à quelques minutes.
Elle est proposée à l'achat pour 172 900 €.
Contactez notre agence (MANIERE Thomas : 06-15-51-71-54) pour plus d'informations sur la maison. Maisons Bruno Petit MJB Châteauroux est là pour vous accompagner dans toutes vos démarches.

Mentions légales

Terrain proposé par un partenaire foncier selon disponibilités et autorisation de publicité au prix de 42 000 €. Hors droit d'enregistrement et frais de notaire. Terrain + Maison proposés au prix de 130 900 € (Hors branchements et raccordements, papiers peints, peintures, revêtement de sol dans les chambres. Tarif modifiable sans préavis). Etiquette énergie : A. Différents modèles disponibles pour ce terrain. Assurances et garanties du constructeur (RC professionnelle, décennale, dommage ouvrage, garantie de remboursement de l'acompte, livraison à prix et délai convenu) : https://www.maisons-brunopetit.fr/mentions-legales/.

Contactez l'agence de Châteauroux

02 54 22 66 24

    * Champs obligatoires

    Vos informations sont traitées par HEXAOM et transmises à un conseiller commercial qui vous contactera afin de répondre à votre demande. Les plans et images présentés sur notre site sont la propriété d’HEXAOM et ne peuvent pas être reproduits sans son accord. Pour retrouver notre politique de protection des données personnelles et exercer vos droits conformément à la « loi informatique et liberté » cliquez-ici.