Maison neuve à
Châteauroux (36000) Référence : TM2419292_1

Prix du projet : Maison avec Terrain

prix 165 900 €

  • 3 pièces
  • 2 chambres
  • Surface maison 70 m2

VENTE : maison de 3 pièces (70 m²) à Châteauroux
EMPLACEMENT PRIVILÉGIÉ - MAISON 3 PIÈCES NEUVE
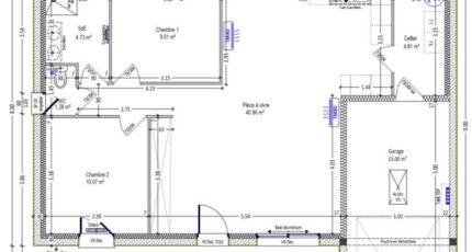
À vendre bénéficiant d'un emplacement d'exception dans Châteauroux (36000), votre agence Maisons Bruno Petit MJB Châteauroux est heureuse de vous proposer cette maison de 3 pièces de plain-pied de 70 m² et de 700 m² de terrain. Conçue de plain-pied, elle comporte deux chambres, une cuisine et une salle de bains.
La maison est neuve.
La propriété est située dans un secteur recherché. On trouve des établissements scolaires de tous types (de la maternelle au lycée) à moins de 10 minutes à pied, tout comme une crèche. Niveau transports, il y a la gare Châteauroux dans un rayon de 1 km. L'autoroute A20 et la nationale N151 sont accessibles à moins de 5 km. On trouve une bibliothèque, des boulangeries, des commerces, deux supermarchés, trois boucheries-charcuteries et des épiceries à quelques minutes à peine.
Elle est à vendre pour la somme de 165 900 €.
Contactez Thomas MANIERE (06-15-51-71-54) pour obtenir de plus amples renseignements sur la maison, sur les démarches à suivre ou sur les modalités de vente.

Mentions légales

Terrain proposé par un partenaire foncier selon disponibilités et autorisation de publicité au prix de 38 000 €. Hors droit d'enregistrement et frais de notaire. Terrain + Maison proposés au prix de 127 900 € (Hors branchements et raccordements, papiers peints, peintures, revêtement de sol dans les chambres. Tarif modifiable sans préavis). Etiquette énergie : A. Différents modèles disponibles pour ce terrain. Assurances et garanties du constructeur (RC professionnelle, décennale, dommage ouvrage, garantie de remboursement de l'acompte, livraison à prix et délai convenu) : https://www.maisons-brunopetit.fr/mentions-legales/.

Contactez l'agence de Châteauroux

02 54 22 66 24

    * Champs obligatoires

    Vos informations sont traitées par HEXAOM et transmises à un conseiller commercial qui vous contactera afin de répondre à votre demande. Les plans et images présentés sur notre site sont la propriété d’HEXAOM et ne peuvent pas être reproduits sans son accord. Pour retrouver notre politique de protection des données personnelles et exercer vos droits conformément à la « loi informatique et liberté » cliquez-ici.