Maison neuve à
Châteauroux (36000) Référence : TM2419292_3

Prix du projet : Maison avec Terrain

prix 388 600 €

  • 6 pièces
  • 5 chambres
  • Surface maison 140 m2

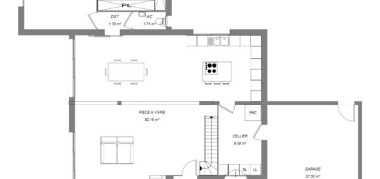
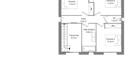
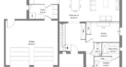
VENTE : maison de 6 pièces (140 m²) à Châteauroux
EMPLACEMENT PRIVILÉGIÉ - MAISON 6 PIÈCES NEUVE
À vendre : votre agence Maisons Bruno Petit MJB Châteauroux est heureuse de vous proposer, bénéficiant d'un emplacement privilégié dans Châteauroux (36000), cette maison de 6 pièces de 140 m². Elle est composée de cinq chambres, d'une cuisine et de deux salles de bains.
Le terrain du bien est de 700 m².
Il s'agit d'une maison de 2 niveaux. Elle est neuve.
Cette maison se situe dans un quartier recherché. Il y a tous les types d'écoles (de la maternelle au lycée) à moins de 10 minutes à pied, tout comme une crèche. Niveau transports, on trouve la gare Châteauroux juste à côté. L'autoroute A20 et la nationale N151 sont accessibles à moins de 5 km. Il y a une bibliothèque, des boulangeries, des commerces, deux supermarchés, des épiceries et un bureau de poste dans les environs.
Elle est proposée à l'achat pour 388 600 €.
Contactez notre agence (MANIERE Thomas : 06-15-51-71-54) pour plus d'informations sur la maison et sur les démarches à suivre. Maisons Bruno Petit MJB Châteauroux est là pour vous accompagner à toutes les étapes de votre projet.

Mentions légales

Terrain proposé par un partenaire foncier selon disponibilités et autorisation de publicité au prix de 38 000 €. Hors droit d'enregistrement et frais de notaire. Terrain + Maison proposés au prix de 388 600 € (Hors branchements et raccordements, papiers peints, peintures, revêtement de sol dans les chambres. Tarif modifiable sans préavis). Etiquette énergie : A. Différents modèles disponibles pour ce terrain. Assurances et garanties du constructeur (RC professionnelle, décennale, dommage ouvrage, garantie de remboursement de l'acompte, livraison à prix et délai convenu) : https://www.maisons-brunopetit.fr/mentions-legales/.

Contactez l'agence de Châteauroux

02 54 22 66 24

    * Champs obligatoires

    Vos informations sont traitées par HEXAOM et transmises à un conseiller commercial qui vous contactera afin de répondre à votre demande. Les plans et images présentés sur notre site sont la propriété d’HEXAOM et ne peuvent pas être reproduits sans son accord. Pour retrouver notre politique de protection des données personnelles et exercer vos droits conformément à la « loi informatique et liberté » cliquez-ici.