Maison neuve à
Châteauroux (36000) Référence : KG2428879_7

Prix du projet : Maison avec Terrain

prix 357 500 €

  • 4 pièces
  • 3 chambres
  • Surface maison 110 m2

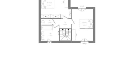
Projet de construction Maison T4 (110 m²) à Châteauroux
EMPLACEMENT PRIVILÉGIÉ - MAISON 4 PIÈCES NEUVE
Votre agence Maisons Bruno Petit MJB Châteauroux est ravie de vous présenter cette maison de 4 pièces de 110 m² en vente bénéficiant d'un emplacement privilégié dans Châteauroux (36000).
Cette maison compte 2 niveaux. Elle compte trois chambres, une cuisine et deux salles de bains. La maison est neuve.
Le terrain du bien est de 1 125 m².
La maison se trouve dans un quartier recherché. Des écoles (de la maternelle au lycée) sont implantées à moins de 10 minutes à pied, tout comme une crèche. Niveau transports en commun, on trouve la gare Châteauroux dans les environs. L'autoroute A20 et la nationale N151 sont accessibles à moins de 5 km. Il y a une bibliothèque, des boulangeries, des commerces, deux supermarchés, des épiceries et trois boucheries-charcuteries à quelques minutes du logement.
Elle est proposée à l'achat pour 357 500 €.
N'hésitez pas à prendre contact avec Kevin GRIMAUD (tél : *6-22-14-89-67) pour toute question sur la maison.

Mentions légales

Terrain proposé par un partenaire foncier selon disponibilités et autorisation de publicité au prix de 67 500 €. Hors droit d'enregistrement et frais de notaire. Terrain + Maison proposés au prix de 357 500 € (Hors branchements et raccordements, papiers peints, peintures, revêtement de sol dans les chambres. Tarif modifiable sans préavis). Etiquette énergie : A. Différents modèles disponibles pour ce terrain. Assurances et garanties du constructeur (RC professionnelle, décennale, dommage ouvrage, garantie de remboursement de l'acompte, livraison à prix et délai convenu) : https://www.maisons-brunopetit.fr/mentions-legales/.

Contactez l'agence de Châteauroux

02 54 22 66 24

    * Champs obligatoires

    Vos informations sont traitées par HEXAOM et transmises à un conseiller commercial qui vous contactera afin de répondre à votre demande. Les plans et images présentés sur notre site sont la propriété d’HEXAOM et ne peuvent pas être reproduits sans son accord. Pour retrouver notre politique de protection des données personnelles et exercer vos droits conformément à la « loi informatique et liberté » cliquez-ici.