Maison neuve à
Châteauroux (36000) Référence : KG2428928_3

Prix du projet : Maison avec Terrain

prix 185 869 €

  • 4 pièces
  • 3 chambres
  • Surface maison 85 m2

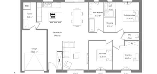
Projet de construction : maison T4 (85 m²) à Châteauroux
EMPLACEMENT PRIVILÉGIÉ - MAISON 4 PIÈCES NEUVE
À vendre bénéficiant d'un emplacement privilégié dans Châteauroux (36000), nous sommes ravis de vous présenter cette maison de 4 pièces de plain-pied de 85 m².
Elle comporte trois chambres, une cuisine et une salle de bains. Cette maison est neuve.
Le terrain du bien s'étend sur 707 m².
La propriété est située dans un secteur prisé. Il y a tous les types d'écoles (maternelle, élémentaire et secondaire) à moins de 10 minutes à pied, tout comme une structure d'accueil pour les tout-petits. Niveau transports en commun, on trouve la gare Châteauroux à quelques pas de la maison. L'autoroute A20 et la nationale N151 sont accessibles à moins de 5 km. Il y a une bibliothèque, des boulangeries, des commerces, deux supermarchés, un bureau de poste et trois boucheries-charcuteries à quelques minutes.
Elle est à vendre pour la somme de 185 869 €.
Prenez contact avec Kevin GRIMAUD (tél : *6-22-14-89-67) pour tout renseignement sur la maison, sur les démarches à suivre ou sur les modalités de vente.

Mentions légales

Terrain proposé par un partenaire foncier selon disponibilités et autorisation de publicité au prix de 47 369 €. Hors droit d'enregistrement et frais de notaire. Terrain + Maison proposés au prix de 185 869 € (Hors branchements et raccordements, papiers peints, peintures, revêtement de sol dans les chambres. Tarif modifiable sans préavis). Etiquette énergie : A. Différents modèles disponibles pour ce terrain. Assurances et garanties du constructeur (RC professionnelle, décennale, dommage ouvrage, garantie de remboursement de l'acompte, livraison à prix et délai convenu) : https://www.maisons-brunopetit.fr/mentions-legales/.

Contactez l'agence de Châteauroux

02 54 22 66 24

    * Champs obligatoires

    Vos informations sont traitées par HEXAOM et transmises à un conseiller commercial qui vous contactera afin de répondre à votre demande. Les plans et images présentés sur notre site sont la propriété d’HEXAOM et ne peuvent pas être reproduits sans son accord. Pour retrouver notre politique de protection des données personnelles et exercer vos droits conformément à la « loi informatique et liberté » cliquez-ici.