Maison neuve à
Châteauroux (36000) Référence : KG2428928_6

Prix du projet : Maison avec Terrain

prix 252 169 €

  • 4 pièces
  • 4 chambres
  • Surface maison 118 m2

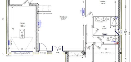
Projet de construction d'une maison F4 (118 m²) à Châteauroux
EMPLACEMENT PRIVILÉGIÉ - MAISON 4 PIÈCES NEUVE
En vente : nous vous proposons, bénéficiant d'un emplacement d'exception dans Châteauroux (36000), cette maison de 4 pièces de plain-pied de 118 m².
Conçue de plain-pied, elle propose quatre chambres, une cuisine et deux salles de bains. Cette maison est neuve.
Le terrain du bien s'étend sur 707 m².
La maison se situe dans un quartier recherché. Des établissements scolaires de tous niveaux (de la maternelle au lycée) sont implantés à moins de 10 minutes à pied, tout comme une crèche. Niveau transports, on trouve la gare Châteauroux dans un rayon de 1 km. L'autoroute A20 et la nationale N151 sont accessibles à moins de 5 km. Il y a une bibliothèque, des boulangeries, des commerces, deux supermarchés, trois boucheries-charcuteries et un bureau de poste à proximité.
Elle est proposée à l'achat pour 252 169 €.
Prenez contact avec Kevin GRIMAUD (tél : *6-22-14-89-67) pour obtenir de plus amples renseignements sur la maison. Maisons Bruno Petit MJB Châteauroux est là pour vous accompagner à toutes les étapes de l'achat.

Mentions légales

Terrain proposé par un partenaire foncier selon disponibilités et autorisation de publicité au prix de 47 369 €. Hors droit d'enregistrement et frais de notaire. Terrain + Maison proposés au prix de 252 169 € (Hors branchements et raccordements, papiers peints, peintures, revêtement de sol dans les chambres. Tarif modifiable sans préavis). Etiquette énergie : A. Différents modèles disponibles pour ce terrain. Assurances et garanties du constructeur (RC professionnelle, décennale, dommage ouvrage, garantie de remboursement de l'acompte, livraison à prix et délai convenu) : https://www.maisons-brunopetit.fr/mentions-legales/.

Contactez l'agence de Châteauroux

02 54 22 66 24

    * Champs obligatoires

    Vos informations sont traitées par HEXAOM et transmises à un conseiller commercial qui vous contactera afin de répondre à votre demande. Les plans et images présentés sur notre site sont la propriété d’HEXAOM et ne peuvent pas être reproduits sans son accord. Pour retrouver notre politique de protection des données personnelles et exercer vos droits conformément à la « loi informatique et liberté » cliquez-ici.