Maison neuve à
Châteauroux (36000) Référence : KG2428928_8

Prix du projet : Maison avec Terrain

prix 293 169 €

  • 5 pièces
  • 4 chambres
  • Surface maison 110 m2

Projet de construction : maison T5 (110 m²) à Châteauroux
EMPLACEMENT PRIVILÉGIÉ - MAISON 5 PIÈCES NEUVE
Nous vous présentons cette maison de 5 pièces de 110 m² et de 707 m² de terrain bénéficiant d'un emplacement privilégié dans Châteauroux (36000).
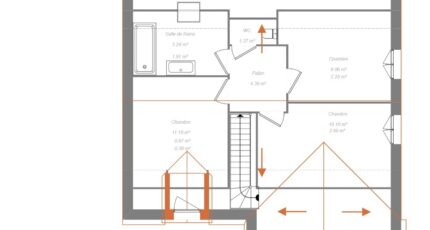
C'est une maison de 2 niveaux. Son intérieur inclut quatre chambres, une cuisine et deux salles de bains. La maison est neuve.
Ce bien se situe dans un secteur prisé. Des établissements scolaires de tous niveaux se trouvent à moins de 10 minutes à pied, tout comme une crèche. Niveau transports en commun, il y a la gare Châteauroux à quelques pas du bien. L'autoroute A20 et la nationale N151 sont accessibles à moins de 5 km. On trouve une bibliothèque, des boulangeries, des commerces, deux supermarchés, un bureau de poste et trois boucheries-charcuteries à proximité.
Il est proposé à l'achat pour 293 169 €.
Contactez notre agence (Kevin GRIMAUD : *6-22-14-89-67) pour toute question sur la maison ou sur les modalités de vente.

Mentions légales

Terrain proposé par un partenaire foncier selon disponibilités et autorisation de publicité au prix de 47 369 €. Hors droit d'enregistrement et frais de notaire. Terrain + Maison proposés au prix de 293 169 € (Hors branchements et raccordements, papiers peints, peintures, revêtement de sol dans les chambres. Tarif modifiable sans préavis). Etiquette énergie : A. Différents modèles disponibles pour ce terrain. Assurances et garanties du constructeur (RC professionnelle, décennale, dommage ouvrage, garantie de remboursement de l'acompte, livraison à prix et délai convenu) : https://www.maisons-brunopetit.fr/mentions-legales/.

Contactez l'agence de Châteauroux

02 54 22 66 24

    * Champs obligatoires

    Vos informations sont traitées par HEXAOM et transmises à un conseiller commercial qui vous contactera afin de répondre à votre demande. Les plans et images présentés sur notre site sont la propriété d’HEXAOM et ne peuvent pas être reproduits sans son accord. Pour retrouver notre politique de protection des données personnelles et exercer vos droits conformément à la « loi informatique et liberté » cliquez-ici.