Maison neuve à
Ciron (36300) Référence : KG2430947_1

Prix du projet : Maison avec Terrain

prix 134 553 €

  • 3 pièces
  • 2 chambres
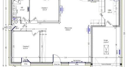
  • Surface maison 70 m2

Ciron : Projet de construction maison de 3 pièces (70 m²)
IDÉALEMENT SITUÉE - MAISON 3 PIÈCES NEUVE
À vendre : votre agence Maisons Bruno Petit MJB Châteauroux est ravie de vous proposer cette maison de 3 pièces de plain-pied de 70 m² et de 817 m² de terrain idéalement située dans Ciron (36300). Elle dispose de deux chambres, d'une cuisine et d'une salle de bains.
La maison est neuve.
Cette maison se situe dans un secteur prisé. On y trouve une école élémentaire. Il y a un accès à l'autoroute A20 à 20 km. On trouve un tennis et une boulangerie à quelques minutes à peine.
Elle est proposée à l'achat pour 134 553 €.
N'hésitez pas à prendre contact avec Kevin GRIMAUD (*6-22-14-89-67) pour toute information sur la maison ou sur les modalités de vente.

Mentions légales

Terrain proposé par un partenaire foncier selon disponibilités et autorisation de publicité au prix de 7 353 €. Hors droit d'enregistrement et frais de notaire. Terrain + Maison proposés au prix de 134 553 € (Hors branchements et raccordements, papiers peints, peintures, revêtement de sol dans les chambres. Tarif modifiable sans préavis). Etiquette énergie : A. Différents modèles disponibles pour ce terrain. Assurances et garanties du constructeur (RC professionnelle, décennale, dommage ouvrage, garantie de remboursement de l'acompte, livraison à prix et délai convenu) : https://www.maisons-brunopetit.fr/mentions-legales/.

Contactez l'agence de Châteauroux

02 54 22 66 24

    * Champs obligatoires

    Vos informations sont traitées par HEXAOM et transmises à un conseiller commercial qui vous contactera afin de répondre à votre demande. Les plans et images présentés sur notre site sont la propriété d’HEXAOM et ne peuvent pas être reproduits sans son accord. Pour retrouver notre politique de protection des données personnelles et exercer vos droits conformément à la « loi informatique et liberté » cliquez-ici.