Maison neuve à
Ciron (36300) Référence : KG2430947_2

Prix du projet : Maison avec Terrain

prix 135 353 €

  • 4 pièces
  • 3 chambres
  • Surface maison 85 m2

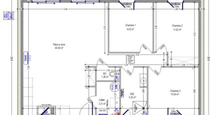
Projet de construction : maison de 4 pièces (85 m²) à Ciron
IDÉALEMENT SITUÉE - MAISON 4 PIÈCES NEUVE
Nous sommes heureux de vous présenter cette maison de 4 pièces de plain-pied de 85 m² et de 817 m² de terrain idéalement située dans Ciron (36300). Elle est composée de trois chambres, d'une cuisine et d'une salle de bains.
Cette maison est neuve.
La maison se trouve dans un quartier attractif. On y trouve une école élémentaire. L'autoroute A20 est accessible à 20 km. Il y a un tennis et une boulangerie dans les environs.
Elle est à vendre pour la somme de 135 353 €.
Prenez contact avec Kevin GRIMAUD (tél : *6-22-14-89-67) pour obtenir de plus amples informations sur la propriété.

Mentions légales

Terrain proposé par un partenaire foncier selon disponibilités et autorisation de publicité au prix de 7 353 €. Hors droit d'enregistrement et frais de notaire. Terrain + Maison proposés au prix de 135 353 € (Hors branchements et raccordements, papiers peints, peintures, revêtement de sol dans les chambres. Tarif modifiable sans préavis). Etiquette énergie : A. Différents modèles disponibles pour ce terrain. Assurances et garanties du constructeur (RC professionnelle, décennale, dommage ouvrage, garantie de remboursement de l'acompte, livraison à prix et délai convenu) : https://www.maisons-brunopetit.fr/mentions-legales/.

Contactez l'agence de Châteauroux

02 54 22 66 24

    * Champs obligatoires

    Vos informations sont traitées par HEXAOM et transmises à un conseiller commercial qui vous contactera afin de répondre à votre demande. Les plans et images présentés sur notre site sont la propriété d’HEXAOM et ne peuvent pas être reproduits sans son accord. Pour retrouver notre politique de protection des données personnelles et exercer vos droits conformément à la « loi informatique et liberté » cliquez-ici.