Maison neuve à
Ciron (36300) Référence : KG2430947_7

Prix du projet : Maison avec Terrain

prix 253 153 €

  • 5 pièces
  • 4 chambres
  • Surface maison 110 m2

Projet de construction d'une maison de 5 pièces (110 m²) à Ciron
IDÉALEMENT SITUÉE - MAISON 5 PIÈCES NEUVE
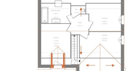
Nous sommes heureux de vous proposer cette maison de 5 pièces de 110 m² et de 817 m² de terrain à vendre idéalement située dans Ciron (36300). Elle dispose de quatre chambres, d'une cuisine et de deux salles de bains.
Cette maison compte 2 niveaux. Elle est neuve.
Cette maison se trouve dans un quartier attractif. On y trouve une école élémentaire. Il y a un accès à l'autoroute A20 à 20 km. Il y a un tennis et une boulangerie à proximité.
Elle est proposée à l'achat pour 253 153 €.
Contactez notre agence (Kevin GRIMAUD : *6-22-14-89-67) pour plus de renseignements sur la maison, sur les modalités de vente ou sur les démarches à suivre. Faites de vos projets immobiliers une réalité avec Maisons Bruno Petit MJB Châteauroux.

Mentions légales

Terrain proposé par un partenaire foncier selon disponibilités et autorisation de publicité au prix de 7 353 €. Hors droit d'enregistrement et frais de notaire. Terrain + Maison proposés au prix de 253 153 € (Hors branchements et raccordements, papiers peints, peintures, revêtement de sol dans les chambres. Tarif modifiable sans préavis). Etiquette énergie : A. Différents modèles disponibles pour ce terrain. Assurances et garanties du constructeur (RC professionnelle, décennale, dommage ouvrage, garantie de remboursement de l'acompte, livraison à prix et délai convenu) : https://www.maisons-brunopetit.fr/mentions-legales/.

Contactez l'agence de Châteauroux

02 54 22 66 24

    * Champs obligatoires

    Vos informations sont traitées par HEXAOM et transmises à un conseiller commercial qui vous contactera afin de répondre à votre demande. Les plans et images présentés sur notre site sont la propriété d’HEXAOM et ne peuvent pas être reproduits sans son accord. Pour retrouver notre politique de protection des données personnelles et exercer vos droits conformément à la « loi informatique et liberté » cliquez-ici.