Maison neuve à
Cluis (36340) Référence : KG2470981_1

Prix du projet : Maison avec Terrain

prix 139 290 €

  • 3 pièces
  • 2 chambres
  • Surface maison 70 m2

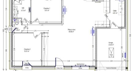
Projet de construction : maison de 3 pièces (70 m²) à Cluis
EMPLACEMENT PRIVILÉGIÉ - MAISON 3 PIÈCES NEUVE
À vendre : à deux pas de Châteauroux, bénéficiant d'un emplacement privilégié dans Cluis (36340), notre agence Maisons Bruno Petit MJB Châteauroux est ravie de vous présenter cette maison de 3 pièces de plain-pied de 70 m² et de 1 209 m² de terrain. Conçue de plain-pied, elle inclut deux chambres, une cuisine et une salle de bains.
La maison est neuve.
La maison est située dans un secteur prisé. On y trouve une école primaire. L'autoroute A20 est accessible à 18 km. Il y a un commerce, une boucherie-charcuterie, un bureau de poste et une épicerie à proximité.
Elle est proposée à l'achat pour 139 290 €.
Prenez contact avec Kevin GRIMAUD (*6-22-14-89-67) pour obtenir de plus amples renseignements sur le bien.

Mentions légales

Terrain proposé par un partenaire foncier selon disponibilités et autorisation de publicité au prix de 12 090 €. Hors droit d'enregistrement et frais de notaire. Terrain + Maison proposés au prix de 139 290 € (Hors branchements et raccordements, papiers peints, peintures, revêtement de sol dans les chambres. Tarif modifiable sans préavis). Etiquette énergie : A. Différents modèles disponibles pour ce terrain. Assurances et garanties du constructeur (RC professionnelle, décennale, dommage ouvrage, garantie de remboursement de l'acompte, livraison à prix et délai convenu) : https://www.maisons-brunopetit.fr/mentions-legales/.

Contactez l'agence de Châteauroux

02 54 22 66 24

    * Champs obligatoires

    Vos informations sont traitées par HEXAOM et transmises à un conseiller commercial qui vous contactera afin de répondre à votre demande. Les plans et images présentés sur notre site sont la propriété d’HEXAOM et ne peuvent pas être reproduits sans son accord. Pour retrouver notre politique de protection des données personnelles et exercer vos droits conformément à la « loi informatique et liberté » cliquez-ici.