Maison neuve à
Déols (36130) Référence : TM2310608_1

Prix du projet : Maison avec Terrain

prix 164 900 €

  • 3 pièces
  • 2 chambres
  • Surface maison 70 m2

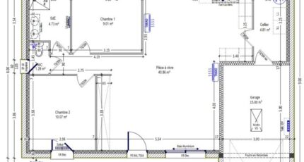
Maison de 3 pièces (70 m²) en vente à Déols
MAISON 3 PIÈCES NEUVE - PROCHE DE CHÂTEAUROUX
En vente à quelques kilomètres de Châteauroux, nous vous proposons à Déols (36130), cette maison de 3 pièces de plain-pied de 70 m². Elle comporte deux chambres, une cuisine et une salle de bains.
Le terrain du bien s'étend sur 560 m².
La maison est neuve.
Cinq établissements scolaires sont implantés à moins de 10 minutes à pied. Niveau transports en commun, il y a la gare Châteauroux à moins de 10 minutes en voiture. L'autoroute A20 et la nationale N151 sont accessibles à moins de 3 km. On trouve un tennis, un bassin de natation, des boulangeries, des commerces, un supermarché, trois boucheries-charcuteries et une épicerie dans les environs.
Son prix de vente est de 164 900 €.
Prenez contact avec notre agence (MANIERE Thomas : 06-15-51-71-54) pour obtenir de plus amples informations sur cette maison et sur les modalités de vente. Donnez vie à vos projets immobiliers avec Maisons Bruno Petit MJB Châteauroux.

Mentions légales

Terrain proposé par un partenaire foncier selon disponibilités et autorisation de publicité au prix de 34 000 €. Hors droit d'enregistrement et frais de notaire. Terrain + Maison proposés au prix de 130 900 € (Hors branchements et raccordements, papiers peints, peintures, revêtement de sol dans les chambres. Tarif modifiable sans préavis). Etiquette énergie : A. Différents modèles disponibles pour ce terrain. Assurances et garanties du constructeur (RC professionnelle, décennale, dommage ouvrage, garantie de remboursement de l'acompte, livraison à prix et délai convenu) : https://www.maisons-brunopetit.fr/mentions-legales/.

Contactez l'agence de Châteauroux

02 54 22 66 24

    * Champs obligatoires

    Vos informations sont traitées par HEXAOM et transmises à un conseiller commercial qui vous contactera afin de répondre à votre demande. Les plans et images présentés sur notre site sont la propriété d’HEXAOM et ne peuvent pas être reproduits sans son accord. Pour retrouver notre politique de protection des données personnelles et exercer vos droits conformément à la « loi informatique et liberté » cliquez-ici.