Maison neuve à
Déols (36130) Référence : TM2447639_3

Prix du projet : Maison avec Terrain

prix 172 500 €

  • 4 pièces
  • 3 chambres
  • Surface maison 85 m2

VENTE d'une maison de 4 pièces (85 m²) à Déols
MAISON 4 PIÈCES NEUVE - PROCHE DE CHÂTEAUROUX
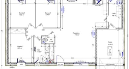
À deux pas de Châteauroux, Maisons Bruno Petit MJB Châteauroux vous présente à vendre à Déols (36130), cette maison de 4 pièces de plain-pied de 85 m² et de 600 m² de terrain.
Elle inclut trois chambres, une cuisine et une salle de bains. Cette maison est neuve.
Il y a quatre établissements scolaires à moins de 10 minutes à pied. Niveau transports, on trouve la gare Châteauroux à moins de 10 minutes en voiture. Il y a un tennis, des commerces, un bureau de poste, trois épiceries et deux boucheries-charcuteries dans les environs.
Elle est proposée à l'achat pour 172 500 €.
N'hésitez pas à prendre contact avec Thomas MANIERE (06-15-51-71-54) pour tout renseignement sur la maison. Concrétisez vos projets immobiliers avec Maisons Bruno Petit MJB Châteauroux.

Mentions légales

Terrain proposé par un partenaire foncier selon disponibilités et autorisation de publicité au prix de 34 000 €. Hors droit d'enregistrement et frais de notaire. Terrain + Maison proposés au prix de 172 500 € (Hors branchements et raccordements, papiers peints, peintures, revêtement de sol dans les chambres. Tarif modifiable sans préavis). Etiquette énergie : A. Différents modèles disponibles pour ce terrain. Assurances et garanties du constructeur (RC professionnelle, décennale, dommage ouvrage, garantie de remboursement de l'acompte, livraison à prix et délai convenu) : https://www.maisons-brunopetit.fr/mentions-legales/.

Contactez l'agence de Châteauroux

02 54 22 66 24

    * Champs obligatoires

    Vos informations sont traitées par HEXAOM et transmises à un conseiller commercial qui vous contactera afin de répondre à votre demande. Les plans et images présentés sur notre site sont la propriété d’HEXAOM et ne peuvent pas être reproduits sans son accord. Pour retrouver notre politique de protection des données personnelles et exercer vos droits conformément à la « loi informatique et liberté » cliquez-ici.