Maison neuve à
Douadic (36300) Référence : FR2299145_12

Prix du projet : Maison avec Terrain

prix 210 800 €

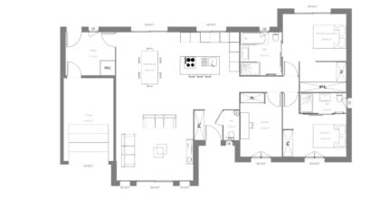
  • 4 pièces
  • 3 chambres
  • Surface maison 110 m2

Maison de 4 pièces (110 m²) à vendre à Douadic
IDÉALEMENT SITUÉE - MAISON 4 PIÈCES NEUVE
En vente : nous sommes ravis de vous présenter cette maison de 4 pièces de plain-pied de 110 m² idéalement située dans Douadic (36300). Son intérieur est composé de trois chambres, d'une cuisine et de deux salles de bains.
Le terrain de cette maison est de 827 m².
La maison est neuve.
Cette maison se situe dans un quartier convoité. Une école maternelle y est implantée. Il y a une épicerie dans les environs.
Elle est à vendre pour la somme de 210 800 €.
Prenez contact avec Franck RUBIO (tél : 06-30-49-64-43) pour toute information sur le bien, sur les démarches à suivre ou sur les modalités de vente. Maisons Bruno Petit MJB Châteauroux est là pour vous accompagner à toutes les étapes de l'achat.

Mentions légales

Terrain proposé par un partenaire foncier selon disponibilités et autorisation de publicité au prix de 8 270 €. Hors droit d'enregistrement et frais de notaire. Terrain + Maison proposés au prix de 202 530 € (Hors branchements et raccordements, papiers peints, peintures, revêtement de sol dans les chambres. Tarif modifiable sans préavis). Etiquette énergie : A. Différents modèles disponibles pour ce terrain. Assurances et garanties du constructeur (RC professionnelle, décennale, dommage ouvrage, garantie de remboursement de l'acompte, livraison à prix et délai convenu) : https://www.maisons-brunopetit.fr/mentions-legales/.

Contactez l'agence de Châteauroux

02 54 22 66 24

    * Champs obligatoires

    Vos informations sont traitées par HEXAOM et transmises à un conseiller commercial qui vous contactera afin de répondre à votre demande. Les plans et images présentés sur notre site sont la propriété d’HEXAOM et ne peuvent pas être reproduits sans son accord. Pour retrouver notre politique de protection des données personnelles et exercer vos droits conformément à la « loi informatique et liberté » cliquez-ici.