Maison neuve à
Écueillé (36240) Référence : FR2298753_14

Prix du projet : Maison avec Terrain

prix 211 048 €

  • 4 pièces
  • 4 chambres
  • Surface maison 105 m2

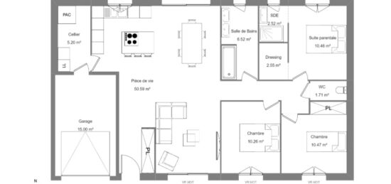
VENTE : maison de 4 pièces (105 m²) à Écueillé
EMPLACEMENT PRIVILÉGIÉ - MAISON 4 PIÈCES NEUVE
Nous vous proposons cette maison de 4 pièces de plain-pied de 105 m² en vente, bénéficiant d'un emplacement privilégié dans Écueillé (36240).
Elle inclut quatre chambres, une cuisine et deux salles de bains. La maison est neuve.
Le terrain de la propriété est de 1 703 m².
Cette maison est située dans un quartier convoité. L'École Primaire François Rabelais et le Collège Calmette et Guerin se trouvent à moins de 10 minutes à pied. Il y a un tennis, une bibliothèque, deux boulangeries, deux commerces, un supermarché, un bureau de poste et une boucherie-charcuterie dans les environs.
Son prix de vente est de 211 048 €.
Prenez contact avec Franck RUBIO (*6-30-49-64-43) pour obtenir de plus amples informations sur le bien, sur les modalités de vente et sur les démarches à suivre. Maisons Bruno Petit MJB Châteauroux vous accompagne à toutes les étapes de l'achat et dans tous vos projets immobiliers.

Mentions légales

Terrain proposé par un partenaire foncier selon disponibilités et autorisation de publicité au prix de 27 248 €. Hors droit d'enregistrement et frais de notaire. Terrain + Maison proposés au prix de 183 800 € (Hors branchements et raccordements, papiers peints, peintures, revêtement de sol dans les chambres. Tarif modifiable sans préavis). Etiquette énergie : A. Différents modèles disponibles pour ce terrain. Assurances et garanties du constructeur (RC professionnelle, décennale, dommage ouvrage, garantie de remboursement de l'acompte, livraison à prix et délai convenu) : https://www.maisons-brunopetit.fr/mentions-legales/.

Contactez l'agence de Châteauroux

02 54 22 66 24

    * Champs obligatoires

    Vos informations sont traitées par HEXAOM et transmises à un conseiller commercial qui vous contactera afin de répondre à votre demande. Les plans et images présentés sur notre site sont la propriété d’HEXAOM et ne peuvent pas être reproduits sans son accord. Pour retrouver notre politique de protection des données personnelles et exercer vos droits conformément à la « loi informatique et liberté » cliquez-ici.