Maison neuve à
Fussy (18110) Référence : JL2305465_1

Prix du projet : Maison avec Terrain

prix 236 800 €

  • 4 pièces
  • 3 chambres
  • Surface maison 120 m2

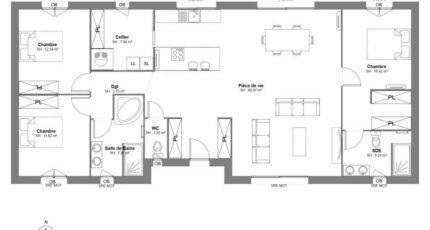
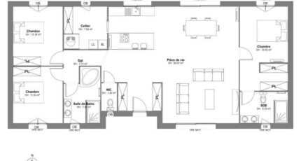
VENTE d'une maison de 3 pièces (120 m²) à Fussy
IDÉALEMENT SITUÉE - MAISON 3 PIÈCES NEUVE
À deux pas de Bourges, venez découvrir cette maison de 3 pièces de plain-pied de 120 m² en vente, idéalement située dans Fussy (18110). Elle offre trois chambres, une cuisine et deux salles de bains.
Le terrain de la maison est de 1 160 m².
La maison est neuve.
Cette maison se trouve dans un quartier prisé. Il y a l'École Primaire Maxime Duruthin à moins de 10 minutes à pied. Côté transports, on trouve deux gares (Bourges et Saint-Germain-du-Puy) à moins de 10 minutes en voiture. On trouve un accès à la nationale N142 à 9 km. Il y a une bibliothèque, un tennis, un commerce, une boulangerie, une épicerie, une poissonnerie et un bureau de poste à proximité.
Elle est proposée à l'achat pour 236 800 €.
Contactez notre agence (LEBLANC Jonathan : 02-48-50-26-25) pour toute information sur le bien.

Mentions légales

Terrain proposé par un partenaire foncier selon disponibilités et autorisation de publicité au prix de 49 900 €. Hors droit d'enregistrement et frais de notaire. Terrain + Maison proposés au prix de 186 900 € (Hors branchements et raccordements, papiers peints, peintures, revêtement de sol dans les chambres. Tarif modifiable sans préavis). Etiquette énergie : A. Différents modèles disponibles pour ce terrain. Assurances et garanties du constructeur (RC professionnelle, décennale, dommage ouvrage, garantie de remboursement de l'acompte, livraison à prix et délai convenu) : https://www.maisons-brunopetit.fr/mentions-legales/.

Contactez l'agence de Bourges

02 48 50 26 25

    * Champs obligatoires

    Vos informations sont traitées par HEXAOM et transmises à un conseiller commercial qui vous contactera afin de répondre à votre demande. Les plans et images présentés sur notre site sont la propriété d’HEXAOM et ne peuvent pas être reproduits sans son accord. Pour retrouver notre politique de protection des données personnelles et exercer vos droits conformément à la « loi informatique et liberté » cliquez-ici.