Maison neuve à
Henrichemont (18250) Référence : FH2452660_7

Prix du projet : Maison avec Terrain

prix 445 213 €

  • 6 pièces
  • 4 chambres
  • Surface maison 180 m2

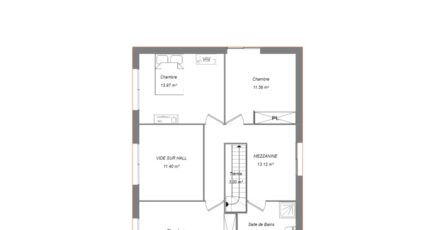
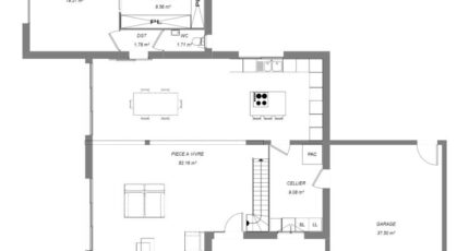
VENTE : maison de 6 pièces (180 m²) à Henrichemont
MAISON 6 PIÈCES NEUVE - PROCHE DE BOURGES
En vente : localisée à quelques kilomètres de Bourges, nous vous proposons cette maison de 6 pièces de 180 m² et de 1 200 m² de terrain à Henrichemont (18250). Son intérieur propose quatre chambres, une cuisine et deux salles de bains.
Cette maison comporte 2 niveaux. Elle est neuve.
Il y a deux établissements scolaires à moins de 10 minutes à pied et dont le Collège Bethune-Sully. On trouve un bassin de natation, trois commerces, une supérette, un bureau de poste et une boucherie-charcuterie dans les environs. Le marché Place Henri IV a lieu chaque mercredi matin.
Elle est proposée à l'achat pour 445 213 €.
N'hésitez pas à prendre contact avec Fabien HELLELI (02-48-50-26-25) pour obtenir de plus amples informations sur la propriété.

Mentions légales

Terrain proposé par un partenaire foncier selon disponibilités et autorisation de publicité au prix de 35 900 €. Hors droit d'enregistrement et frais de notaire. Terrain + Maison proposés au prix de 445 213 € (Hors branchements et raccordements, papiers peints, peintures, revêtement de sol dans les chambres. Tarif modifiable sans préavis). Etiquette énergie : A. Différents modèles disponibles pour ce terrain. Assurances et garanties du constructeur (RC professionnelle, décennale, dommage ouvrage, garantie de remboursement de l'acompte, livraison à prix et délai convenu) : https://www.maisons-brunopetit.fr/mentions-legales/.

Contactez l'agence de Bourges

02 48 50 26 25

    * Champs obligatoires

    Vos informations sont traitées par HEXAOM et transmises à un conseiller commercial qui vous contactera afin de répondre à votre demande. Les plans et images présentés sur notre site sont la propriété d’HEXAOM et ne peuvent pas être reproduits sans son accord. Pour retrouver notre politique de protection des données personnelles et exercer vos droits conformément à la « loi informatique et liberté » cliquez-ici.