Maison neuve à
Issoudun (36100) Référence : KG2303160_2

Prix du projet : Maison avec Terrain

prix 180 100 €

  • 4 pièces
  • 3 chambres
  • Surface maison 85 m2

Issoudun : maison de 4 pièces (85 m²) en vente
EMPLACEMENT PRIVILÉGIÉ - MAISON 4 PIÈCES NEUVE
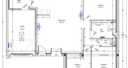
À vendre à 29 km de Châteauroux, bénéficiant d'un emplacement privilégié dans Issoudun (36100), nous sommes ravis de vous présenter cette maison de 4 pièces de plain-pied de 85 m². Conçue de plain-pied, elle compte trois chambres, une cuisine et une salle de bains.
Le terrain du bien s'étend sur 600 m².
Cette maison est neuve.
Cette maison est située dans un quartier prisé. Il y a tous les types d'établissements scolaires à moins de 10 minutes à pied. Niveau transports, on trouve la gare Issoudun dans un rayon de 1 km. Il y a un accès à l'autoroute A20 à 18 km. Il y a une bibliothèque, des commerces, des boulangeries, un supermarché, trois épiceries et un bureau de poste dans les environs. Ne manquez pas le marché Centre-Ville chaque samedi.
Elle est proposée à l'achat pour 180 100 €.
N'hésitez pas à prendre contact avec Kevin GRIMAUD (tél : 06-22-14-89-67) pour obtenir de plus amples informations sur la maison.

Mentions légales

Terrain proposé par un partenaire foncier selon disponibilités et autorisation de publicité au prix de 36 000 €. Hors droit d'enregistrement et frais de notaire. Maison proposée, avec un contrat de construction de maison individuelle, dans le cadre de la loi du 19/12/1990, au prix de 144 100 € (Hors branchements et raccordements, papiers peints, peintures, revêtement de sol dans les chambres, qui sont chiffrés dans les travaux qui restent à charge du client. Tarif modifiable sans préavis). Étiquette énergie : A. Différents modèles disponibles pour ce terrain. Assurances et garanties du constructeur comprises (RC professionnelle, décennale, dommage ouvrage).

Contactez l'agence de Châteauroux

02 54 22 66 24

    * Champs obligatoires

    Vos informations sont traitées par HEXAOM et transmises à un conseiller commercial qui vous contactera afin de répondre à votre demande. Les plans et images présentés sur notre site sont la propriété d’HEXAOM et ne peuvent pas être reproduits sans son accord. Pour retrouver notre politique de protection des données personnelles et exercer vos droits conformément à la « loi informatique et liberté » cliquez-ici.