Maison neuve à
Issoudun (36100) Référence : TM2310743_2

Prix du projet : Maison avec Terrain

prix 160 400 €

  • 4 pièces
  • 3 chambres
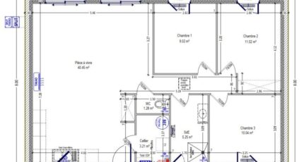
  • Surface maison 85 m2

Issoudun : maison de 4 pièces (85 m²) en vente
IDÉALEMENT SITUÉE - MAISON 4 PIÈCES NEUVE
À deux pas de Châteauroux, découvrez cette maison de 4 pièces de plain-pied de 85 m² et de 556 m² de terrain idéalement située dans Issoudun (36100).
Elle est composée de trois chambres, d'une cuisine et d'une salle de bains. La maison est neuve.
Ce bien est situé dans un secteur convoité. On trouve tous les types d'écoles (maternelle, élémentaire et secondaire) à moins de 10 minutes à pied. Niveau transports en commun, il y a la gare Issoudun à quelques pas de la maison. L'autoroute A20 est accessible à 18 km. On trouve une bibliothèque, des commerces, des boulangeries, un supermarché, des boucheries-charcuteries et trois épiceries dans les environs. Ne manquez pas le marché Centre-Ville chaque samedi.
Il est à vendre pour la somme de 160 400 €.
Contactez Thomas MANIERE (tél : 06-15-51-71-54) pour toute question sur la maison ou sur les démarches à suivre. Faites de vos projets immobiliers une réalité avec Maisons Bruno Petit MJB Châteauroux.

Mentions légales

Terrain proposé par un partenaire foncier selon disponibilités et autorisation de publicité au prix de 29 800 €. Hors droit d'enregistrement et frais de notaire. Terrain + Maison proposés au prix de 130 600 € (Hors branchements et raccordements, papiers peints, peintures, revêtement de sol dans les chambres. Tarif modifiable sans préavis). Etiquette énergie : A. Différents modèles disponibles pour ce terrain. Assurances et garanties du constructeur (RC professionnelle, décennale, dommage ouvrage, garantie de remboursement de l'acompte, livraison à prix et délai convenu) : https://www.maisons-brunopetit.fr/mentions-legales/.

Contactez l'agence de Châteauroux

02 54 22 66 24

    * Champs obligatoires

    Vos informations sont traitées par HEXAOM et transmises à un conseiller commercial qui vous contactera afin de répondre à votre demande. Les plans et images présentés sur notre site sont la propriété d’HEXAOM et ne peuvent pas être reproduits sans son accord. Pour retrouver notre politique de protection des données personnelles et exercer vos droits conformément à la « loi informatique et liberté » cliquez-ici.