Maison neuve à
Issoudun (36100) Référence : TM2310743_3

Prix du projet : Maison avec Terrain

prix 171 750 €

  • 4 pièces
  • 3 chambres
  • Surface maison 85 m2

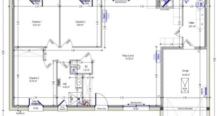
Issoudun : maison T4 (85 m²) à vendre
IDÉALEMENT SITUÉE - MAISON 4 PIÈCES NEUVE
En vente : située à quelques kilomètres de Châteauroux, nous sommes ravis de vous présenter, idéalement située dans Issoudun (36100), cette maison de 4 pièces de plain-pied de 85 m² et de 556 m² de terrain.
Conçue de plain-pied, elle dispose de trois chambres, d'une cuisine et d'une salle de bains. Cette maison est neuve.
La maison se situe dans un secteur prisé. Des écoles du primaire et du secondaire sont implantées à moins de 10 minutes à pied. Niveau transports en commun, on trouve la gare Issoudun juste à côté. Il y a un accès à l'autoroute A20 à 18 km. Il y a une bibliothèque, des commerces, des boulangeries, un supermarché, trois épiceries et un bureau de poste dans les environs. Le marché Centre-Ville a lieu chaque samedi.
Son prix de vente est de 171 750 €.
Contactez notre agence (MANIERE Thomas : 06-15-51-71-54) pour plus d'informations sur la maison. Maisons Bruno Petit MJB Châteauroux vous accompagne dans toutes vos démarches et à toutes les étapes de votre projet.

Mentions légales

Terrain proposé par un partenaire foncier selon disponibilités et autorisation de publicité au prix de 29 800 €. Hors droit d'enregistrement et frais de notaire. Terrain + Maison proposés au prix de 141 950 € (Hors branchements et raccordements, papiers peints, peintures, revêtement de sol dans les chambres. Tarif modifiable sans préavis). Etiquette énergie : A. Différents modèles disponibles pour ce terrain. Assurances et garanties du constructeur (RC professionnelle, décennale, dommage ouvrage, garantie de remboursement de l'acompte, livraison à prix et délai convenu) : https://www.maisons-brunopetit.fr/mentions-legales/.

Contactez l'agence de Châteauroux

02 54 22 66 24

    * Champs obligatoires

    Vos informations sont traitées par HEXAOM et transmises à un conseiller commercial qui vous contactera afin de répondre à votre demande. Les plans et images présentés sur notre site sont la propriété d’HEXAOM et ne peuvent pas être reproduits sans son accord. Pour retrouver notre politique de protection des données personnelles et exercer vos droits conformément à la « loi informatique et liberté » cliquez-ici.