Maison neuve à
Issoudun (36100) Référence : KG2430505_3

Prix du projet : Maison avec Terrain

prix 168 300 €

  • 4 pièces
  • 3 chambres
  • Surface maison 85 m2

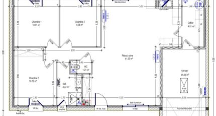
Projet de construction d'une maison T4 (85 m²) à Issoudun
EMPLACEMENT PRIVILÉGIÉ - MAISON 4 PIÈCES NEUVE
À 29 km de Châteauroux, laissez vous charmer par en vente, bénéficiant d'un emplacement d'exception dans Issoudun (36100), cette maison de 4 pièces de plain-pied de 85 m² et de 556 m² de terrain. Elle est composée de trois chambres, d'une cuisine et d'une salle de bains.
La maison est neuve.
Cette maison se situe dans un quartier attractif. Des établissements scolaires (de la maternelle au lycée) se trouvent à moins de 10 minutes à pied. Côté transports, il y a la gare Issoudun dans les environs. L'autoroute A20 est accessible à 18 km. On trouve une bibliothèque, des commerces, des boulangeries, un supermarché, trois épiceries et des boucheries-charcuteries à quelques minutes. Ne manquez pas le marché Centre-Ville tous les samedis.
Son prix de vente est de 168 300 €.
Contactez Kevin GRIMAUD (tél : *6-22-14-89-67) pour toute information sur la maison, sur les modalités de vente ou sur les démarches à suivre. Maisons Bruno Petit MJB Châteauroux vous accompagne à toutes les étapes de votre projet et dans tous vos projets immobiliers.

Mentions légales

Terrain proposé par un partenaire foncier selon disponibilités et autorisation de publicité au prix de 29 800 €. Hors droit d'enregistrement et frais de notaire. Terrain + Maison proposés au prix de 168 300 € (Hors branchements et raccordements, papiers peints, peintures, revêtement de sol dans les chambres. Tarif modifiable sans préavis). Etiquette énergie : A. Différents modèles disponibles pour ce terrain. Assurances et garanties du constructeur (RC professionnelle, décennale, dommage ouvrage, garantie de remboursement de l'acompte, livraison à prix et délai convenu) : https://www.maisons-brunopetit.fr/mentions-legales/.

Contactez l'agence de Châteauroux

02 54 22 66 24

    * Champs obligatoires

    Vos informations sont traitées par HEXAOM et transmises à un conseiller commercial qui vous contactera afin de répondre à votre demande. Les plans et images présentés sur notre site sont la propriété d’HEXAOM et ne peuvent pas être reproduits sans son accord. Pour retrouver notre politique de protection des données personnelles et exercer vos droits conformément à la « loi informatique et liberté » cliquez-ici.