Maison neuve à
Issoudun (36100) Référence : KG2430505_4

Prix du projet : Maison avec Terrain

prix 261 800 €

  • 5 pièces
  • 4 chambres
  • Surface maison 120 m2

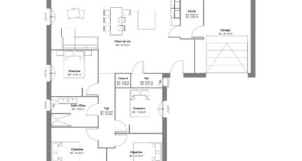
Projet de construction d'une maison de 5 pièces (120 m²) à Issoudun
EMPLACEMENT PRIVILÉGIÉ - MAISON 5 PIÈCES NEUVE
À vendre : à deux pas de Châteauroux, bénéficiant d'un emplacement d'exception dans Issoudun (36100), découvrez cette maison de 5 pièces de plain-pied de 120 m². Son intérieur offre quatre chambres, une cuisine et une salle de bains.
Le terrain de cette maison est de 556 m².
La maison est neuve.
La maison se situe dans un secteur prisé. On trouve des écoles de tous niveaux (de la maternelle au lycée) à moins de 10 minutes à pied. Niveau transports en commun, il y a la gare Issoudun juste à côté. Il y a un accès à l'autoroute A20 à 18 km. On trouve une bibliothèque, des commerces, des boulangeries, un supermarché, trois épiceries et un bureau de poste dans les environs. Ne manquez pas le marché Centre-Ville tous les samedis.
Elle est à vendre pour la somme de 261 800 €.
Contactez Kevin GRIMAUD (tél : *6-22-14-89-67) pour tout renseignement sur la propriété.

Mentions légales

Terrain proposé par un partenaire foncier selon disponibilités et autorisation de publicité au prix de 29 800 €. Hors droit d'enregistrement et frais de notaire. Terrain + Maison proposés au prix de 261 800 € (Hors branchements et raccordements, papiers peints, peintures, revêtement de sol dans les chambres. Tarif modifiable sans préavis). Etiquette énergie : A. Différents modèles disponibles pour ce terrain. Assurances et garanties du constructeur (RC professionnelle, décennale, dommage ouvrage, garantie de remboursement de l'acompte, livraison à prix et délai convenu) : https://www.maisons-brunopetit.fr/mentions-legales/.

Contactez l'agence de Châteauroux

02 54 22 66 24

    * Champs obligatoires

    Vos informations sont traitées par HEXAOM et transmises à un conseiller commercial qui vous contactera afin de répondre à votre demande. Les plans et images présentés sur notre site sont la propriété d’HEXAOM et ne peuvent pas être reproduits sans son accord. Pour retrouver notre politique de protection des données personnelles et exercer vos droits conformément à la « loi informatique et liberté » cliquez-ici.