Maison neuve à
Issoudun (36100) Référence : KG2430505_5

Prix du projet : Maison avec Terrain

prix 218 600 €

  • 4 pièces
  • 4 chambres
  • Surface maison 105 m2

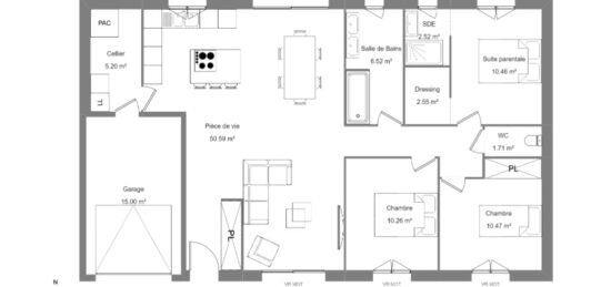
Projet de construction Maison de 4 pièces (105 m²) à Issoudun
EMPLACEMENT PRIVILÉGIÉ - MAISON 4 PIÈCES NEUVE
À vendre à deux pas de Châteauroux, bénéficiant d'un emplacement privilégié dans Issoudun (36100), Maisons Bruno Petit MJB Châteauroux vous propose cette maison de 4 pièces de plain-pied de 105 m² et de 556 m² de terrain.
Conçue de plain-pied, elle comporte quatre chambres, une cuisine et deux salles de bains. Cette maison est neuve.
La maison se trouve dans un secteur prisé. Des établissements scolaires du primaire et du secondaire sont implantés à moins de 10 minutes à pied. Niveau transports, il y a la gare Issoudun à quelques pas du bien. L'autoroute A20 est accessible à 18 km. On trouve une bibliothèque, des commerces, des boulangeries, un supermarché, trois épiceries et un bureau de poste à proximité. Ne manquez pas le marché Centre-Ville chaque samedi.
Elle est à vendre pour la somme de 218 600 €.
Prenez contact avec notre agence (Kevin GRIMAUD : *6-22-14-89-67) pour plus d'informations sur la maison. Maisons Bruno Petit MJB Châteauroux vous accompagne à toutes les étapes de votre projet et dans tous vos projets immobiliers.

Mentions légales

Terrain proposé par un partenaire foncier selon disponibilités et autorisation de publicité au prix de 29 800 €. Hors droit d'enregistrement et frais de notaire. Terrain + Maison proposés au prix de 218 600 € (Hors branchements et raccordements, papiers peints, peintures, revêtement de sol dans les chambres. Tarif modifiable sans préavis). Etiquette énergie : A. Différents modèles disponibles pour ce terrain. Assurances et garanties du constructeur (RC professionnelle, décennale, dommage ouvrage, garantie de remboursement de l'acompte, livraison à prix et délai convenu) : https://www.maisons-brunopetit.fr/mentions-legales/.

Contactez l'agence de Châteauroux

02 54 22 66 24

    * Champs obligatoires

    Vos informations sont traitées par HEXAOM et transmises à un conseiller commercial qui vous contactera afin de répondre à votre demande. Les plans et images présentés sur notre site sont la propriété d’HEXAOM et ne peuvent pas être reproduits sans son accord. Pour retrouver notre politique de protection des données personnelles et exercer vos droits conformément à la « loi informatique et liberté » cliquez-ici.