Maison neuve à
La Chapelle-Saint-Ursin (18570) Référence : SG2408013_5

Prix du projet : Maison avec Terrain

prix 171 500 €

  • 3 pièces
  • 2 chambres
  • Surface maison 70 m2

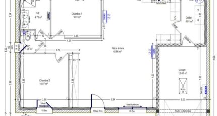
Maison T3 (70 m²) en vente à La Chapelle-Saint-Ursin
EMPLACEMENT PRIVILÉGIÉ - MAISON 3 PIÈCES NEUVE
À vendre : à deux pas de Bourges, votre agence Maisons Bruno Petit MJB Bourges est heureuse de vous présenter, bénéficiant d'un emplacement privilégié dans La Chapelle-Saint-Ursin (18570), cette maison de 3 pièces de plain-pied de 70 m² et de 402 m² de terrain. Conçue de plain-pied, elle inclut deux chambres, une cuisine et une salle de bains.
La maison est neuve.
Cette maison se situe dans un quartier recherché. On y trouve des écoles maternelles et élémentaires. Niveau transports, il y a trois gares (Marmagne, Bourges et Saint-Florent-sur-Cher) à moins de 10 minutes en voiture. L'autoroute A71 et les nationales N151 et N142 sont accessibles à moins de 8 km. On trouve deux tennis, une boulangerie, deux commerces, un supermarché, une boucherie-charcuterie et un bureau de poste à proximité du bien.
Elle est proposée à l'achat pour 171 500 €.
N'hésitez pas à prendre contact avec notre constructeur (GROGRELIN Sandra : *2-48-50-26-25) pour toute question sur la propriété. Maisons Bruno Petit MJB Bourges est là pour vous accompagner dans tous vos projets immobiliers.

Mentions légales

Terrain proposé par un partenaire foncier selon disponibilités et autorisation de publicité au prix de 40 600 €. Hors droit d'enregistrement et frais de notaire. Terrain + Maison proposés au prix de 130 900 € (Hors branchements et raccordements, papiers peints, peintures, revêtement de sol dans les chambres. Tarif modifiable sans préavis). Etiquette énergie : A. Différents modèles disponibles pour ce terrain. Assurances et garanties du constructeur (RC professionnelle, décennale, dommage ouvrage, garantie de remboursement de l'acompte, livraison à prix et délai convenu) : https://www.maisons-brunopetit.fr/mentions-legales/.

Contactez l'agence de Bourges

02 48 50 26 25

    * Champs obligatoires

    Vos informations sont traitées par HEXAOM et transmises à un conseiller commercial qui vous contactera afin de répondre à votre demande. Les plans et images présentés sur notre site sont la propriété d’HEXAOM et ne peuvent pas être reproduits sans son accord. Pour retrouver notre politique de protection des données personnelles et exercer vos droits conformément à la « loi informatique et liberté » cliquez-ici.