Maison neuve à
La Châtre (36400) Référence : FR2329368_8

Prix du projet : Maison avec Terrain

prix 377 660 €

  • 6 pièces
  • 3 chambres
  • Surface maison 160 m2

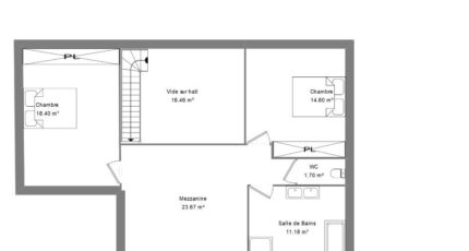
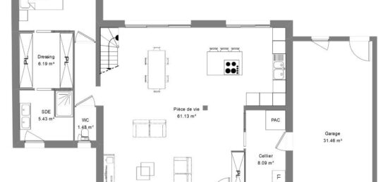
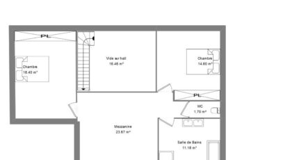
VENTE : maison de 6 pièces (160 m²) à La Châtre
IDÉALEMENT SITUÉE - MAISON 6 PIÈCES NEUVE
Nous sommes heureux de vous présenter en vente, idéalement située dans La Châtre (36400), cette maison de 6 pièces de 160 m².
Cette maison compte 2 niveaux. Son intérieur est composé de trois chambres, d'une cuisine et de deux salles de bains. Cette maison est neuve.
Le terrain de la propriété est de 2 103 m².
Cette maison se trouve dans un secteur recherché. Des établissements scolaires du primaire et du secondaire sont implantés à moins de 10 minutes à pied, tout comme une structure d'accueil pour les tout-petits. On trouve un bassin de natation, un tennis, une bibliothèque, quatre boulangeries, des commerces, deux supermarchés, un bureau de poste et une épicerie à proximité.
Elle est proposée à l'achat pour 377 660 €.
Contactez Franck RUBIO (tél : *6-30-49-64-43) pour toute question sur la maison ou sur les démarches à suivre. Concrétisez vos projets immobiliers avec Maisons Bruno Petit MJB Châteauroux.

Mentions légales

Terrain proposé par un partenaire foncier selon disponibilités et autorisation de publicité au prix de 35 960 €. Hors droit d'enregistrement et frais de notaire. Terrain + Maison proposés au prix de 341 700 € (Hors branchements et raccordements, papiers peints, peintures, revêtement de sol dans les chambres. Tarif modifiable sans préavis). Etiquette énergie : A. Différents modèles disponibles pour ce terrain. Assurances et garanties du constructeur (RC professionnelle, décennale, dommage ouvrage, garantie de remboursement de l'acompte, livraison à prix et délai convenu) : https://www.maisons-brunopetit.fr/mentions-legales/.

Contactez l'agence de Châteauroux

02 54 22 66 24

    * Champs obligatoires

    Vos informations sont traitées par HEXAOM et transmises à un conseiller commercial qui vous contactera afin de répondre à votre demande. Les plans et images présentés sur notre site sont la propriété d’HEXAOM et ne peuvent pas être reproduits sans son accord. Pour retrouver notre politique de protection des données personnelles et exercer vos droits conformément à la « loi informatique et liberté » cliquez-ici.