Maison neuve à
La Châtre (36400) Référence : FR2329375_6

Prix du projet : Maison avec Terrain

prix 183 960 €

  • 4 pièces
  • 3 chambres
  • Surface maison 85 m2

La Châtre : maison de 4 pièces (85 m²) à vendre
IDÉALEMENT SITUÉE - MAISON 4 PIÈCES NEUVE
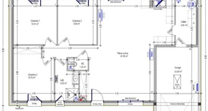
Maisons Bruno Petit MJB Châteauroux vous propose cette maison de 4 pièces de plain-pied de 85 m² et de 2 205 m² de terrain idéalement située dans La Châtre (36400).
Son intérieur offre trois chambres, une cuisine et une salle de bains. La maison est neuve.
La maison se trouve dans un quartier recherché. Il y a des écoles de tous niveaux à moins de 10 minutes à pied, tout comme une structure d'accueil pour la petite enfance. On trouve un bassin de natation, un tennis, une bibliothèque, quatre boulangeries, des commerces, deux supermarchés, une épicerie et trois boucheries-charcuteries dans les environs.
Elle est à vendre pour la somme de 183 960 €.
Contactez Franck RUBIO (tél : *6-30-49-64-43) pour toute information sur le bien. Concrétisez vos projets immobiliers avec Maisons Bruno Petit MJB Châteauroux.

Mentions légales

Terrain proposé par un partenaire foncier selon disponibilités et autorisation de publicité au prix de 35 960 €. Hors droit d'enregistrement et frais de notaire. Terrain + Maison proposés au prix de 148 000 € (Hors branchements et raccordements, papiers peints, peintures, revêtement de sol dans les chambres. Tarif modifiable sans préavis). Etiquette énergie : A. Différents modèles disponibles pour ce terrain. Assurances et garanties du constructeur (RC professionnelle, décennale, dommage ouvrage, garantie de remboursement de l'acompte, livraison à prix et délai convenu) : https://www.maisons-brunopetit.fr/mentions-legales/.

Contactez l'agence de Châteauroux

02 54 22 66 24

    * Champs obligatoires

    Vos informations sont traitées par HEXAOM et transmises à un conseiller commercial qui vous contactera afin de répondre à votre demande. Les plans et images présentés sur notre site sont la propriété d’HEXAOM et ne peuvent pas être reproduits sans son accord. Pour retrouver notre politique de protection des données personnelles et exercer vos droits conformément à la « loi informatique et liberté » cliquez-ici.