Maison neuve à
Le Blanc (36300) Référence : KG2430986_1

Prix du projet : Maison avec Terrain

prix 147 200 €

  • 3 pièces
  • 2 chambres
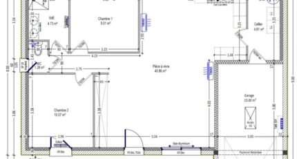
  • Surface maison 70 m2

Projet de construction d'une maison de 3 pièces (70 m²) au Blanc
EMPLACEMENT PRIVILÉGIÉ - MAISON 3 PIÈCES NEUVE
En vente : notre agence Maisons Bruno Petit MJB Châteauroux est heureuse de vous proposer cette maison de 3 pièces de plain-pied de 70 m², bénéficiant d'un emplacement d'exception dans Le Blanc (36300).
Son intérieur est composé de deux chambres, d'une cuisine et d'une salle de bains. Cette maison est neuve.
Le terrain du bien est de 2 600 m².
La maison est située dans un secteur attractif. Des écoles de tous niveaux sont implantées à moins de 10 minutes à pied. Il y a un tennis, un bassin de natation, des commerces, des boulangeries, deux supermarchés, trois épiceries et une supérette à quelques minutes du logement. Enfin, le marché Place de Gaulle a lieu tous les samedis matin.
Elle est à vendre pour la somme de 147 200 €.
N'hésitez pas à prendre contact avec notre constructeur (Kevin GRIMAUD : *6-22-14-89-67) pour tout renseignement sur la maison, sur les modalités de vente et sur les démarches à suivre. Maisons Bruno Petit MJB Châteauroux vous accompagne dans tous vos projets immobiliers et à toutes les étapes de votre projet.

Mentions légales

Terrain proposé par un partenaire foncier selon disponibilités et autorisation de publicité au prix de 20 000 €. Hors droit d'enregistrement et frais de notaire. Terrain + Maison proposés au prix de 147 200 € (Hors branchements et raccordements, papiers peints, peintures, revêtement de sol dans les chambres. Tarif modifiable sans préavis). Etiquette énergie : A. Différents modèles disponibles pour ce terrain. Assurances et garanties du constructeur (RC professionnelle, décennale, dommage ouvrage, garantie de remboursement de l'acompte, livraison à prix et délai convenu) : https://www.maisons-brunopetit.fr/mentions-legales/.

Contactez l'agence de Châteauroux

02 54 22 66 24

    * Champs obligatoires

    Vos informations sont traitées par HEXAOM et transmises à un conseiller commercial qui vous contactera afin de répondre à votre demande. Les plans et images présentés sur notre site sont la propriété d’HEXAOM et ne peuvent pas être reproduits sans son accord. Pour retrouver notre politique de protection des données personnelles et exercer vos droits conformément à la « loi informatique et liberté » cliquez-ici.