Maison neuve à
Le Blanc (36300) Référence : KG2430986_2

Prix du projet : Maison avec Terrain

prix 148 000 €

  • 4 pièces
  • 3 chambres
  • Surface maison 85 m2

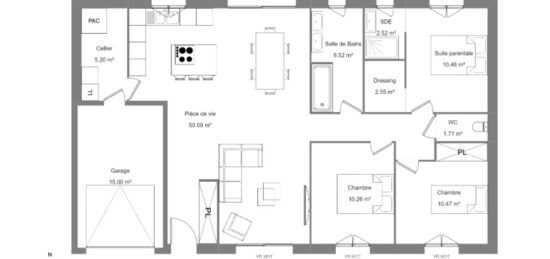
Projet de construction Maison de 4 pièces (85 m²) au Blanc
EMPLACEMENT PRIVILÉGIÉ - MAISON 4 PIÈCES NEUVE
À vendre : bénéficiant d'un emplacement d'exception dans Le Blanc (36300), nous vous proposons cette maison de 4 pièces de plain-pied de 85 m² et de 2 600 m² de terrain.
Son intérieur inclut trois chambres, une cuisine et une salle de bains. La maison est neuve.
La maison se trouve dans un quartier attractif. Tous les types d'établissements scolaires (de la maternelle au lycée) sont implantés à moins de 10 minutes à pied. Il y a un tennis, un bassin de natation, des commerces, des boulangeries, deux supermarchés, une supérette et deux boucheries-charcuteries dans les environs. Le marché Place de Gaulle a lieu tous les samedis matin.
Elle est proposée à l'achat pour 148 000 €.
Contactez notre agence (Kevin GRIMAUD : *6-22-14-89-67) pour obtenir de plus amples renseignements sur la maison. Maisons Bruno Petit MJB Châteauroux vous accompagne dans tous vos projets immobiliers et dans toutes vos démarches.

Mentions légales

Terrain proposé par un partenaire foncier selon disponibilités et autorisation de publicité au prix de 20 000 €. Hors droit d'enregistrement et frais de notaire. Terrain + Maison proposés au prix de 148 000 € (Hors branchements et raccordements, papiers peints, peintures, revêtement de sol dans les chambres. Tarif modifiable sans préavis). Etiquette énergie : A. Différents modèles disponibles pour ce terrain. Assurances et garanties du constructeur (RC professionnelle, décennale, dommage ouvrage, garantie de remboursement de l'acompte, livraison à prix et délai convenu) : https://www.maisons-brunopetit.fr/mentions-legales/.

Contactez l'agence de Châteauroux

02 54 22 66 24

    * Champs obligatoires

    Vos informations sont traitées par HEXAOM et transmises à un conseiller commercial qui vous contactera afin de répondre à votre demande. Les plans et images présentés sur notre site sont la propriété d’HEXAOM et ne peuvent pas être reproduits sans son accord. Pour retrouver notre politique de protection des données personnelles et exercer vos droits conformément à la « loi informatique et liberté » cliquez-ici.