Maison neuve à
Le Blanc (36300) Référence : KG2430986_3

Prix du projet : Maison avec Terrain

prix 158 500 €

  • 4 pièces
  • 3 chambres
  • Surface maison 85 m2

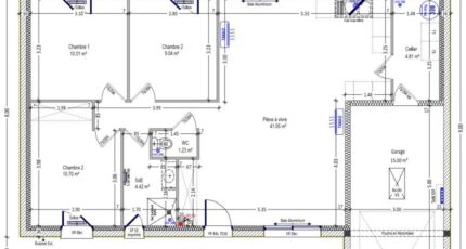
Projet de construction : maison de 4 pièces (85 m²) au Blanc
EMPLACEMENT PRIVILÉGIÉ - MAISON 4 PIÈCES NEUVE
Nous sommes ravis de vous présenter à vendre, bénéficiant d'un emplacement privilégié dans Le Blanc (36300), cette maison de 4 pièces de plain-pied de 85 m².
Son intérieur propose trois chambres, une cuisine et une salle de bains. La maison est neuve.
Le terrain du bien s'étend sur 2 600 m².
Cette maison se situe dans un quartier recherché. Tous les types d'établissements scolaires sont implantés à moins de 10 minutes à pied. Il y a un tennis, un bassin de natation, des commerces, des boulangeries, deux supermarchés, trois épiceries et deux boucheries-charcuteries dans les environs. Le marché Place de Gaulle a lieu chaque samedi matin.
Son prix de vente est de 158 500 €.
N'hésitez pas à prendre contact avec notre agence (Kevin GRIMAUD : *6-22-14-89-67) pour toute question sur la maison, sur les démarches à suivre et sur les modalités de vente. Maisons Bruno Petit MJB Châteauroux est là pour vous accompagner à toutes les étapes de votre projet.

Mentions légales

Terrain proposé par un partenaire foncier selon disponibilités et autorisation de publicité au prix de 20 000 €. Hors droit d'enregistrement et frais de notaire. Terrain + Maison proposés au prix de 158 500 € (Hors branchements et raccordements, papiers peints, peintures, revêtement de sol dans les chambres. Tarif modifiable sans préavis). Etiquette énergie : A. Différents modèles disponibles pour ce terrain. Assurances et garanties du constructeur (RC professionnelle, décennale, dommage ouvrage, garantie de remboursement de l'acompte, livraison à prix et délai convenu) : https://www.maisons-brunopetit.fr/mentions-legales/.

Contactez l'agence de Châteauroux

02 54 22 66 24

    * Champs obligatoires

    Vos informations sont traitées par HEXAOM et transmises à un conseiller commercial qui vous contactera afin de répondre à votre demande. Les plans et images présentés sur notre site sont la propriété d’HEXAOM et ne peuvent pas être reproduits sans son accord. Pour retrouver notre politique de protection des données personnelles et exercer vos droits conformément à la « loi informatique et liberté » cliquez-ici.