Maison neuve à
Le Magny (36400) Référence : KG2293175_3

Prix du projet : Maison avec Terrain

prix 157 600 €

  • 4 pièces
  • 3 chambres
  • Surface maison 85 m2

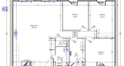
Le Magny : maison F4 (85 m²) à vendre
EMPLACEMENT PRIVILÉGIÉ - MAISON 4 PIÈCES NEUVE
Nous vous présentons cette maison de 4 pièces de plain-pied de 85 m² à vendre, bénéficiant d'un emplacement d'exception dans Le Magny (36400). Conçue de plain-pied, elle est composée de trois chambres, d'une cuisine et d'une salle de bains.
Le terrain du bien est de 2 990 m².
Cette maison est neuve.
La propriété se situe dans un secteur recherché. L'École Primaire Jean Moulin est implantée à moins de 10 minutes à pied.
Elle est proposée à l'achat pour 157 600 €.
Contactez Kevin GRIMAUD (tél : 06-22-14-89-67) pour tout renseignement sur la maison, sur les démarches à suivre et sur les modalités de vente. Maisons Bruno Petit MJB Châteauroux vous accompagne à toutes les étapes de l'achat et dans tous vos projets immobiliers.

Mentions légales

Terrain proposé par un partenaire foncier selon disponibilités et autorisation de publicité au prix de 27 000 €. Hors droit d'enregistrement et frais de notaire. Maison proposée, avec un contrat de construction de maison individuelle, dans le cadre de la loi du 19/12/1990, au prix de 130 600 € (Hors branchements et raccordements, papiers peints, peintures, revêtement de sol dans les chambres, qui sont chiffrés dans les travaux qui restent à charge du client. Tarif modifiable sans préavis). Étiquette énergie : A. Différents modèles disponibles pour ce terrain. Assurances et garanties du constructeur comprises (RC professionnelle, décennale, dommage ouvrage).

Contactez l'agence de Châteauroux

02 54 22 66 24

    * Champs obligatoires

    Vos informations sont traitées par HEXAOM et transmises à un conseiller commercial qui vous contactera afin de répondre à votre demande. Les plans et images présentés sur notre site sont la propriété d’HEXAOM et ne peuvent pas être reproduits sans son accord. Pour retrouver notre politique de protection des données personnelles et exercer vos droits conformément à la « loi informatique et liberté » cliquez-ici.