Maison neuve à
Le Magny
(36400) Référence :
FR2296542_2
Prix du projet : Maison avec Terrain
prix 229 700 €
- 4 pièces
- 3 chambres
- Surface maison 110 m2
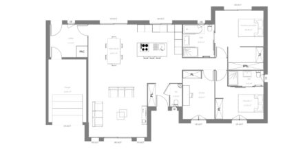
Le Magny : maison F4 (110 m²) à vendre
MAISON 4 PIÈCES NEUVE
À vendre : au Magny (36400), nous vous présentons cette maison de 4 pièces de plain-pied de 110 m² et de 1 004 m² de terrain. Elle propose trois chambres, une cuisine et deux salles de bains.
Cette maison est neuve.
On trouve l'École Primaire Jean Moulin à moins de 10 minutes à pied.
Son prix de vente est de 229 700 €.
Contactez notre agence (Franck RUBIO : 06-30-49-64-43) pour tout renseignement sur la maison. Maisons Bruno Petit MJB Châteauroux est là pour vous accompagner dans tous vos projets immobiliers.
Mentions légales
Terrain proposé par un partenaire foncier selon disponibilités et autorisation de publicité au prix de 27 600 €. Hors droit d'enregistrement et frais de notaire. Maison proposée, avec un contrat de construction de maison individuelle, dans le cadre de la loi du 19/12/1990, au prix de 202 100 € (Hors branchements et raccordements, papiers peints, peintures, revêtement de sol dans les chambres, qui sont chiffrés dans les travaux qui restent à charge du client. Tarif modifiable sans préavis). Étiquette énergie : A. Différents modèles disponibles pour ce terrain. Assurances et garanties du constructeur comprises (RC professionnelle, décennale, dommage ouvrage).Agence Bruno Petit MJB de Châteauroux (36000)
- Téléphone :
- 02 54 22 66 24
- Adressse :
- 360 avenue de la Châtre
36000 Châteauroux, France