Maison neuve à
Le Magny (36400) Référence : TM2311679_6

Prix du projet : Maison avec Terrain

prix 363 700 €

  • 6 pièces
  • 3 chambres
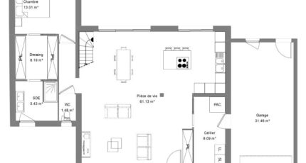
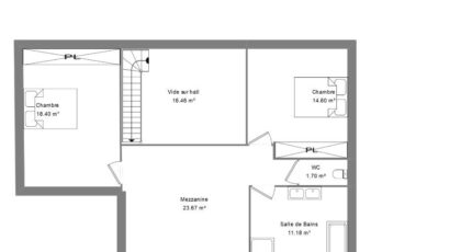
  • Surface maison 160 m2

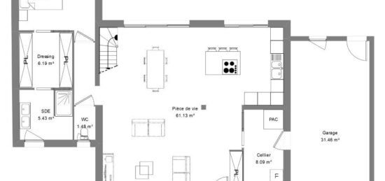
Le Magny : maison T6 (160 m²) à vendre
IDÉALEMENT SITUÉE - MAISON 6 PIÈCES NEUVE
Nous sommes ravis de vous proposer cette maison de 6 pièces de 160 m² et de 1 230 m² de terrain idéalement située dans Le Magny (36400).
C'est une maison de 2 niveaux. Elle inclut trois chambres, une cuisine et deux salles de bains. La maison est neuve.
Cette propriété se situe dans un quartier convoité. L'École Primaire Jean Moulin se trouve à moins de 10 minutes à pied.
Elle est proposée à l'achat pour 363 700 €.
Contactez Thomas MANIERE (06-15-51-71-54) pour toute information sur la maison. Maisons Bruno Petit MJB Châteauroux est là pour vous accompagner à toutes les étapes de l'achat.

Mentions légales

Terrain proposé par un partenaire foncier selon disponibilités et autorisation de publicité au prix de 22 000 €. Hors droit d'enregistrement et frais de notaire. Terrain + Maison proposés au prix de 341 700 € (Hors branchements et raccordements, papiers peints, peintures, revêtement de sol dans les chambres. Tarif modifiable sans préavis). Etiquette énergie : A. Différents modèles disponibles pour ce terrain. Assurances et garanties du constructeur (RC professionnelle, décennale, dommage ouvrage, garantie de remboursement de l'acompte, livraison à prix et délai convenu) : https://www.maisons-brunopetit.fr/mentions-legales/.

Contactez l'agence de Châteauroux

02 54 22 66 24

    * Champs obligatoires

    Vos informations sont traitées par HEXAOM et transmises à un conseiller commercial qui vous contactera afin de répondre à votre demande. Les plans et images présentés sur notre site sont la propriété d’HEXAOM et ne peuvent pas être reproduits sans son accord. Pour retrouver notre politique de protection des données personnelles et exercer vos droits conformément à la « loi informatique et liberté » cliquez-ici.