Maison neuve à
Le Magny (36400) Référence : FR2415285_3

Prix du projet : Maison avec Terrain

prix 211 400 €

  • 4 pièces
  • 4 chambres
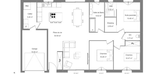
  • Surface maison 105 m2

Maison F4 (105 m²) en vente au Magny
EMPLACEMENT PRIVILÉGIÉ - MAISON 4 PIÈCES NEUVE
À vendre : bénéficiant d'un emplacement d'exception dans Le Magny (36400), laissez vous charmer par cette maison de 4 pièces de plain-pied de 105 m².
Elle dispose de quatre chambres, d'une cuisine et de deux salles de bains. La maison est neuve.
Le terrain du bien est de 1 004 m².
Ce bien est situé dans un quartier prisé. On trouve l'École Primaire Jean Moulin à moins de 10 minutes à pied.
Il est proposé à l'achat pour 211 400 €.
Contactez notre agence (RUBIO Franck : °6-30-49-64-43) pour plus de renseignements sur la maison. Maisons Bruno Petit MJB Châteauroux est là pour vous accompagner dans tous vos projets immobiliers.

Mentions légales

Terrain proposé par un partenaire foncier selon disponibilités et autorisation de publicité au prix de 27 600 €. Hors droit d'enregistrement et frais de notaire. Terrain + Maison proposés au prix de 211 400 € (Hors branchements et raccordements, papiers peints, peintures, revêtement de sol dans les chambres. Tarif modifiable sans préavis). Etiquette énergie : A. Différents modèles disponibles pour ce terrain. Assurances et garanties du constructeur (RC professionnelle, décennale, dommage ouvrage, garantie de remboursement de l'acompte, livraison à prix et délai convenu) : https://www.maisons-brunopetit.fr/mentions-legales/.

Contactez l'agence de Châteauroux

02 54 22 66 24

    * Champs obligatoires

    Vos informations sont traitées par HEXAOM et transmises à un conseiller commercial qui vous contactera afin de répondre à votre demande. Les plans et images présentés sur notre site sont la propriété d’HEXAOM et ne peuvent pas être reproduits sans son accord. Pour retrouver notre politique de protection des données personnelles et exercer vos droits conformément à la « loi informatique et liberté » cliquez-ici.