Maison neuve à
Le Magny (36400) Référence : KG2430577_6

Prix du projet : Maison avec Terrain

prix 323 200 €

  • 4 pièces
  • 3 chambres
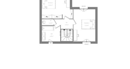
  • Surface maison 110 m2

Projet de construction d'une maison T4 (110 m²) au Magny
IDÉALEMENT SITUÉE - MAISON 4 PIÈCES NEUVE
En vente : notre agence Maisons Bruno Petit MJB Châteauroux est heureuse de vous présenter cette maison de 4 pièces de 110 m² et de 1 070 m² de terrain idéalement située dans Le Magny (36400).
C'est une maison de 2 niveaux. Elle offre trois chambres, une cuisine et deux salles de bains. Cette maison est neuve.
Cette maison est située dans un secteur prisé. Il y a l'École Primaire Jean Moulin à moins de 10 minutes à pied.
Elle est proposée à l'achat pour 323 200 €.
Contactez Kevin GRIMAUD (tél : *6-22-14-89-67) pour tout renseignement sur la maison, sur les modalités de vente ou sur les démarches à suivre.

Mentions légales

Terrain proposé par un partenaire foncier selon disponibilités et autorisation de publicité au prix de 33 200 €. Hors droit d'enregistrement et frais de notaire. Terrain + Maison proposés au prix de 323 200 € (Hors branchements et raccordements, papiers peints, peintures, revêtement de sol dans les chambres. Tarif modifiable sans préavis). Etiquette énergie : A. Différents modèles disponibles pour ce terrain. Assurances et garanties du constructeur (RC professionnelle, décennale, dommage ouvrage, garantie de remboursement de l'acompte, livraison à prix et délai convenu) : https://www.maisons-brunopetit.fr/mentions-legales/.

Contactez l'agence de Châteauroux

02 54 22 66 24

    * Champs obligatoires

    Vos informations sont traitées par HEXAOM et transmises à un conseiller commercial qui vous contactera afin de répondre à votre demande. Les plans et images présentés sur notre site sont la propriété d’HEXAOM et ne peuvent pas être reproduits sans son accord. Pour retrouver notre politique de protection des données personnelles et exercer vos droits conformément à la « loi informatique et liberté » cliquez-ici.