Maison neuve à
Le Menoux (36200) Référence : KG2345713_2

Prix du projet : Maison avec Terrain

prix 209 200 €

  • 6 pièces
  • 4 chambres
  • Surface maison 110 m2

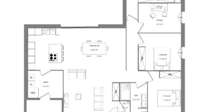
VENTE d'une maison T6 (110 m²) au Menoux
EMPLACEMENT PRIVILÉGIÉ - MAISON 6 PIÈCES NEUVE
À vendre à quelques kilomètres de Châteauroux, notre agence Maisons Bruno Petit MJB Châteauroux est ravie de vous proposer, bénéficiant d'un emplacement d'exception dans Le Menoux (36200), cette maison de 6 pièces de plain-pied de 110 m² et de 1 382 m² de terrain.
Elle est composée de quatre chambres, d'une cuisine et de deux salles de bains. La maison est neuve.
Cette maison se trouve dans un quartier prisé. Il y a l'École Élémentaire François Hervier à moins de 10 minutes à pied. Côté transports, on trouve les gares Argenton-sur-Creuse et Chabenet à moins de 10 minutes en voiture. Il y a un accès à l'autoroute A20 à 6 km. Il y a une bibliothèque, une boulangerie et un bureau de poste à quelques minutes du logement.
Elle est proposée à l'achat pour 209 200 €.
N'hésitez pas à prendre contact avec Kevin GRIMAUD (*6-22-14-89-67) pour toute question sur le bien. Maisons Bruno Petit MJB Châteauroux est là pour vous accompagner dans tous vos projets immobiliers.

Mentions légales

Terrain proposé par un partenaire foncier selon disponibilités et autorisation de publicité au prix de 8 500 €. Hors droit d'enregistrement et frais de notaire. Terrain + Maison proposés au prix de 200 700 € (Hors branchements et raccordements, papiers peints, peintures, revêtement de sol dans les chambres. Tarif modifiable sans préavis). Etiquette énergie : A. Différents modèles disponibles pour ce terrain. Assurances et garanties du constructeur (RC professionnelle, décennale, dommage ouvrage, garantie de remboursement de l'acompte, livraison à prix et délai convenu) : https://www.maisons-brunopetit.fr/mentions-legales/.

Contactez l'agence de Châteauroux

02 54 22 66 24

    * Champs obligatoires

    Vos informations sont traitées par HEXAOM et transmises à un conseiller commercial qui vous contactera afin de répondre à votre demande. Les plans et images présentés sur notre site sont la propriété d’HEXAOM et ne peuvent pas être reproduits sans son accord. Pour retrouver notre politique de protection des données personnelles et exercer vos droits conformément à la « loi informatique et liberté » cliquez-ici.