Maison neuve à
Le Menoux (36200) Référence : FR2415874_1

Prix du projet : Maison avec Terrain

prix 139 100 €

  • 4 pièces
  • 3 chambres
  • Surface maison 85 m2

VENTE d'une maison de 4 pièces (85 m²) au Menoux
IDÉALEMENT SITUÉE - MAISON 4 PIÈCES NEUVE
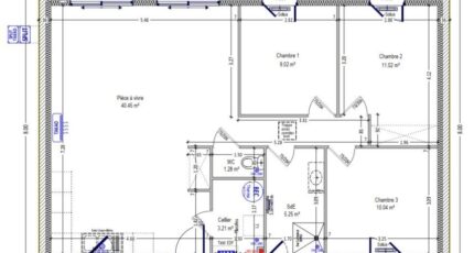
En vente : située à 29 km de Châteauroux, idéalement située dans Le Menoux (36200), notre agence Maisons Bruno Petit MJB Châteauroux est heureuse de vous présenter cette maison de 4 pièces de plain-pied de 85 m². Elle se divise en trois chambres, une cuisine et une salle de bains.
Le terrain de cette maison est de 1 352 m².
La maison est neuve.
Ce bien se trouve dans un secteur recherché. L'École Élémentaire François Hervier est implantée à moins de 10 minutes à pied. Niveau transports en commun, on trouve deux gares (Argenton-sur-Creuse et Chabenet) à moins de 10 minutes en voiture. On trouve un accès à l'autoroute A20 à 6 km. Il y a une bibliothèque, une boulangerie et un bureau de poste à proximité de la maison.
Son prix de vente est de 139 100 €.
Prenez contact avec Franck RUBIO (tél : °6-30-49-64-43) pour plus de renseignements sur la maison. Maisons Bruno Petit MJB Châteauroux vous accompagne dans tous vos projets immobiliers et dans toutes vos démarches.

Mentions légales

Terrain proposé par un partenaire foncier selon disponibilités et autorisation de publicité au prix de 8 500 €. Hors droit d'enregistrement et frais de notaire. Terrain + Maison proposés au prix de 130 600 € (Hors branchements et raccordements, papiers peints, peintures, revêtement de sol dans les chambres. Tarif modifiable sans préavis). Etiquette énergie : A. Différents modèles disponibles pour ce terrain. Assurances et garanties du constructeur (RC professionnelle, décennale, dommage ouvrage, garantie de remboursement de l'acompte, livraison à prix et délai convenu) : https://www.maisons-brunopetit.fr/mentions-legales/.

Contactez l'agence de Châteauroux

02 54 22 66 24

    * Champs obligatoires

    Vos informations sont traitées par HEXAOM et transmises à un conseiller commercial qui vous contactera afin de répondre à votre demande. Les plans et images présentés sur notre site sont la propriété d’HEXAOM et ne peuvent pas être reproduits sans son accord. Pour retrouver notre politique de protection des données personnelles et exercer vos droits conformément à la « loi informatique et liberté » cliquez-ici.