Maison neuve à
Le Menoux (36200) Référence : FR2415874_2

Prix du projet : Maison avec Terrain

prix 152 600 €

  • 4 pièces
  • 3 chambres
  • Surface maison 85 m2

VENTE : maison de 4 pièces (85 m²) au Menoux
IDÉALEMENT SITUÉE - MAISON 4 PIÈCES NEUVE
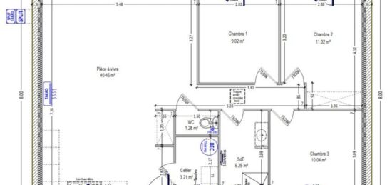
À vendre : localisée à deux pas de Châteauroux, idéalement située dans Le Menoux (36200), nous vous présentons cette maison de 4 pièces de plain-pied de 85 m² et de 1 352 m² de terrain.
Elle offre trois chambres, une cuisine et une salle de bains. Cette maison est neuve.
Cette maison est située dans un secteur recherché. Il y a l'École Élémentaire François Hervier à moins de 10 minutes à pied. Côté transports en commun, on trouve les gares Argenton-sur-Creuse et Chabenet à moins de 10 minutes en voiture. L'autoroute A20 est accessible à 6 km. Il y a une bibliothèque, une boulangerie et un bureau de poste dans les environs.
Son prix de vente est de 152 600 €.
Contactez Franck RUBIO (tél : °6-30-49-64-43) pour obtenir de plus amples informations sur la maison, sur les modalités de vente ou sur les démarches à suivre. Maisons Bruno Petit MJB Châteauroux vous accompagne dans tous vos projets immobiliers et dans toutes vos démarches.

Mentions légales

Terrain proposé par un partenaire foncier selon disponibilités et autorisation de publicité au prix de 8 500 €. Hors droit d'enregistrement et frais de notaire. Terrain + Maison proposés au prix de 144 100 € (Hors branchements et raccordements, papiers peints, peintures, revêtement de sol dans les chambres. Tarif modifiable sans préavis). Etiquette énergie : A. Différents modèles disponibles pour ce terrain. Assurances et garanties du constructeur (RC professionnelle, décennale, dommage ouvrage, garantie de remboursement de l'acompte, livraison à prix et délai convenu) : https://www.maisons-brunopetit.fr/mentions-legales/.

Contactez l'agence de Châteauroux

02 54 22 66 24

    * Champs obligatoires

    Vos informations sont traitées par HEXAOM et transmises à un conseiller commercial qui vous contactera afin de répondre à votre demande. Les plans et images présentés sur notre site sont la propriété d’HEXAOM et ne peuvent pas être reproduits sans son accord. Pour retrouver notre politique de protection des données personnelles et exercer vos droits conformément à la « loi informatique et liberté » cliquez-ici.