Maison neuve à
Le Menoux (36200) Référence : KG2470892_3

Prix du projet : Maison avec Terrain

prix 177 860 €

  • 3 pièces
  • 3 chambres
  • Surface maison 91 m2

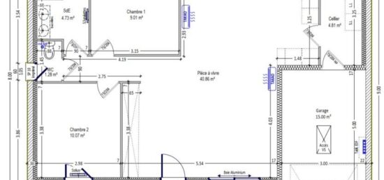
Projet de construction Maison de 3 pièces (91 m²) au Menoux
IDÉALEMENT SITUÉE - MAISON 3 PIÈCES NEUVE
À vendre : localisée à 29 km de Châteauroux, nous vous proposons cette maison de 3 pièces de plain-pied de 91 m², idéalement située dans Le Menoux (36200).
Conçue de plain-pied, elle dispose de trois chambres, d'une cuisine et d'une salle de bains. La maison est neuve.
Le terrain du bien est de 1 013 m².
Cette maison est située dans un secteur recherché. L'École Élémentaire François Hervier est implantée à moins de 10 minutes à pied. Côté transports, on trouve les gares Argenton-sur-Creuse et Chabenet à moins de 10 minutes en voiture. L'autoroute A20 est accessible à 6 km. Il y a une bibliothèque à quelques minutes de la maison.
Elle est à vendre pour la somme de 177 860 €.
Contactez notre agence (GRIMAUD Kevin : *6-22-14-89-67) pour toute information sur la maison. Maisons Bruno Petit MJB Châteauroux est là pour vous accompagner à toutes les étapes de votre projet.

Mentions légales

Terrain proposé par un partenaire foncier selon disponibilités et autorisation de publicité au prix de 20 260 €. Hors droit d'enregistrement et frais de notaire. Terrain + Maison proposés au prix de 177 860 € (Hors branchements et raccordements, papiers peints, peintures, revêtement de sol dans les chambres. Tarif modifiable sans préavis). Etiquette énergie : A. Différents modèles disponibles pour ce terrain. Assurances et garanties du constructeur (RC professionnelle, décennale, dommage ouvrage, garantie de remboursement de l'acompte, livraison à prix et délai convenu) : https://www.maisons-brunopetit.fr/mentions-legales/.

Contactez l'agence de Châteauroux

02 54 22 66 24

    * Champs obligatoires

    Vos informations sont traitées par HEXAOM et transmises à un conseiller commercial qui vous contactera afin de répondre à votre demande. Les plans et images présentés sur notre site sont la propriété d’HEXAOM et ne peuvent pas être reproduits sans son accord. Pour retrouver notre politique de protection des données personnelles et exercer vos droits conformément à la « loi informatique et liberté » cliquez-ici.