Maison neuve à
Le Menoux (36200) Référence : KG2470892_5

Prix du projet : Maison avec Terrain

prix 217 660 €

  • 3 pièces
  • 2 chambres
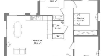
  • Surface maison 100 m2

Projet de construction d'une maison F3 (100 m²) au Menoux
IDÉALEMENT SITUÉE - MAISON 3 PIÈCES NEUVE
À vendre à deux pas de Châteauroux, votre agence Maisons Bruno Petit MJB Châteauroux est heureuse de vous proposer cette maison de 3 pièces de plain-pied de 100 m² et de 1 013 m² de terrain, idéalement située dans Le Menoux (36200).
Son intérieur compte deux chambres, une cuisine et deux salles de bains. Cette maison est neuve.
Cette maison se situe dans un secteur attractif. Il y a l'École Élémentaire François Hervier à moins de 10 minutes à pied. Niveau transports en commun, on trouve les gares Argenton-sur-Creuse et Chabenet à moins de 10 minutes en voiture. L'autoroute A20 est accessible à 6 km. Il y a une bibliothèque à quelques minutes.
Elle est à vendre pour la somme de 217 660 €.
Contactez notre constructeur (Kevin GRIMAUD : *6-22-14-89-67) pour obtenir de plus amples informations sur le bien. Maisons Bruno Petit MJB Châteauroux vous accompagne à toutes les étapes de l'achat et dans tous vos projets immobiliers.

Mentions légales

Terrain proposé par un partenaire foncier selon disponibilités et autorisation de publicité au prix de 20 260 €. Hors droit d'enregistrement et frais de notaire. Terrain + Maison proposés au prix de 217 660 € (Hors branchements et raccordements, papiers peints, peintures, revêtement de sol dans les chambres. Tarif modifiable sans préavis). Etiquette énergie : A. Différents modèles disponibles pour ce terrain. Assurances et garanties du constructeur (RC professionnelle, décennale, dommage ouvrage, garantie de remboursement de l'acompte, livraison à prix et délai convenu) : https://www.maisons-brunopetit.fr/mentions-legales/.

Contactez l'agence de Châteauroux

02 54 22 66 24

    * Champs obligatoires

    Vos informations sont traitées par HEXAOM et transmises à un conseiller commercial qui vous contactera afin de répondre à votre demande. Les plans et images présentés sur notre site sont la propriété d’HEXAOM et ne peuvent pas être reproduits sans son accord. Pour retrouver notre politique de protection des données personnelles et exercer vos droits conformément à la « loi informatique et liberté » cliquez-ici.