Maison neuve à
Le Menoux (36200) Référence : KG2470892_7

Prix du projet : Maison avec Terrain

prix 266 060 €

  • 5 pièces
  • 4 chambres
  • Surface maison 110 m2

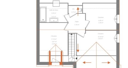
Projet de construction d'une maison F5 (110 m²) au Menoux
IDÉALEMENT SITUÉE - MAISON 5 PIÈCES NEUVE
En vente : localisée à 29 km de Châteauroux, Maisons Bruno Petit MJB Châteauroux vous propose cette maison de 5 pièces de 110 m² idéalement située dans Le Menoux (36200).
C'est une maison de 2 niveaux. Elle se divise en quatre chambres, une cuisine et deux salles de bains. La maison est neuve.
Le terrain de la propriété est de 1 013 m².
Cette maison se situe dans un secteur recherché. L'École Élémentaire François Hervier est implantée à moins de 10 minutes à pied. Niveau transports, on trouve les gares Argenton-sur-Creuse et Chabenet à moins de 10 minutes en voiture. L'autoroute A20 est accessible à 6 km. Il y a une bibliothèque à quelques minutes.
Elle est proposée à l'achat pour 266 060 €.
Prenez contact avec notre agence (Kevin GRIMAUD : *6-22-14-89-67) pour toute information sur la maison, sur les démarches à suivre ou sur les modalités de vente. Maisons Bruno Petit MJB Châteauroux vous accompagne à toutes les étapes de l'achat et dans tous vos projets immobiliers.

Mentions légales

Terrain proposé par un partenaire foncier selon disponibilités et autorisation de publicité au prix de 20 260 €. Hors droit d'enregistrement et frais de notaire. Terrain + Maison proposés au prix de 266 060 € (Hors branchements et raccordements, papiers peints, peintures, revêtement de sol dans les chambres. Tarif modifiable sans préavis). Etiquette énergie : A. Différents modèles disponibles pour ce terrain. Assurances et garanties du constructeur (RC professionnelle, décennale, dommage ouvrage, garantie de remboursement de l'acompte, livraison à prix et délai convenu) : https://www.maisons-brunopetit.fr/mentions-legales/.

Contactez l'agence de Châteauroux

02 54 22 66 24

    * Champs obligatoires

    Vos informations sont traitées par HEXAOM et transmises à un conseiller commercial qui vous contactera afin de répondre à votre demande. Les plans et images présentés sur notre site sont la propriété d’HEXAOM et ne peuvent pas être reproduits sans son accord. Pour retrouver notre politique de protection des données personnelles et exercer vos droits conformément à la « loi informatique et liberté » cliquez-ici.