Maison neuve à
Le Pêchereau (36200) Référence : FR2295180_10

Prix du projet : Maison avec Terrain

prix 215 800 €

  • 4 pièces
  • 4 chambres
  • Surface maison 105 m2

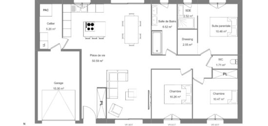
Maison neuve 5 pièces - 105 m² - au Pêchereau
📍 Devenez propriétaire de cette maison au Pêchereau, dans un quartier calme, découvrez ce projet de maison neuve, proposée sur un terrain situé à proximité des réseaux de bus 🚌.
Elle se compose de 4 chambres, dont une suite parentale
d'une salle de bain, et salle d'eau
d'une belle pièce de vie lumineuse avec cuisine ouverte,
d'un cellier,
et d'un garage.
✨ La maison offre un espace optimisé, un confort au quotidien et une excellente performance énergétique.
🔧 Prestations de qualité :
✔ Chauffage, eau chaude et VMC Atlantic
✔ Volets roulants motorisés et centralisés avec domotique
✔ Sanitaires Jacob Delafon
✔ Portes intérieures gravées
✔ Menuiseries PVC / mixtes / aluminium
✔ Construction conforme RE 2020
📜 Projet réalisé sous Contrat de Construction (CCMI - loi de 1990) pour une sécurité maximale.
🤝 Maisons Brunon Petit, constructeur local depuis 47 ²ans, vous accompagne pour concevoir votre maison selon vos attentes.
📞 N'attendez plus et Contactez Franck RUBIO ( °630496443) pour plus d'informations et créez votre projet personnalisé. Sms acceptés

Mentions légales

Terrain proposé par un partenaire foncier selon disponibilités et autorisation de publicité au prix de 32 000 €. Hors droit d'enregistrement et frais de notaire. Terrain + Maison proposés au prix de 183 800 € (Hors branchements et raccordements, papiers peints, peintures, revêtement de sol dans les chambres. Tarif modifiable sans préavis). Etiquette énergie : A. Différents modèles disponibles pour ce terrain. Assurances et garanties du constructeur (RC professionnelle, décennale, dommage ouvrage, garantie de remboursement de l'acompte, livraison à prix et délai convenu) : https://www.maisons-brunopetit.fr/mentions-legales/.

Contactez l'agence de Châteauroux

02 54 22 66 24

    * Champs obligatoires

    Vos informations sont traitées par HEXAOM et transmises à un conseiller commercial qui vous contactera afin de répondre à votre demande. Les plans et images présentés sur notre site sont la propriété d’HEXAOM et ne peuvent pas être reproduits sans son accord. Pour retrouver notre politique de protection des données personnelles et exercer vos droits conformément à la « loi informatique et liberté » cliquez-ici.