Maison neuve à
Le Pêchereau (36200) Référence : FR2415867_12

Prix du projet : Maison avec Terrain

prix 227 300 €

  • 3 pièces
  • 2 chambres
  • Surface maison 100 m2

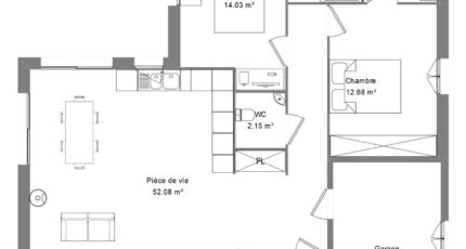
VENTE d'une maison T3 (100 m²) au Pêchereau
MAISON 3 PIÈCES NEUVE - PROCHE DE CHÂTEAUROUX
En vente : à quelques kilomètres de Châteauroux, nous sommes ravis de vous présenter cette maison de 3 pièces de plain-pied de 100 m² au Pêchereau (36200).
Conçue de plain-pied, elle inclut deux chambres, une cuisine et deux salles de bains. Cette maison est neuve.
Le terrain de la propriété est de 749 m².
Il y a l'École Élémentaire Jacques Prévert et l'École Maternelle Jacques Prévert à moins de 10 minutes à pied. Niveau transports en commun, on trouve deux gares (Argenton-sur-Creuse et Chabenet) à moins de 10 minutes en voiture. L'autoroute A20 est accessible à 4 km.
Son prix de vente est de 227 300 €.
Prenez contact avec notre agence (RUBIO Franck : °6-30-49-64-43) pour obtenir de plus amples renseignements sur la propriété ou sur les modalités de vente. Maisons Bruno Petit MJB Châteauroux est là pour vous accompagner à toutes les étapes de votre projet.

Mentions légales

Terrain proposé par un partenaire foncier selon disponibilités et autorisation de publicité au prix de 29 900 €. Hors droit d'enregistrement et frais de notaire. Terrain + Maison proposés au prix de 227 300 € (Hors branchements et raccordements, papiers peints, peintures, revêtement de sol dans les chambres. Tarif modifiable sans préavis). Etiquette énergie : A. Différents modèles disponibles pour ce terrain. Assurances et garanties du constructeur (RC professionnelle, décennale, dommage ouvrage, garantie de remboursement de l'acompte, livraison à prix et délai convenu) : https://www.maisons-brunopetit.fr/mentions-legales/.

Contactez l'agence de Châteauroux

02 54 22 66 24

    * Champs obligatoires

    Vos informations sont traitées par HEXAOM et transmises à un conseiller commercial qui vous contactera afin de répondre à votre demande. Les plans et images présentés sur notre site sont la propriété d’HEXAOM et ne peuvent pas être reproduits sans son accord. Pour retrouver notre politique de protection des données personnelles et exercer vos droits conformément à la « loi informatique et liberté » cliquez-ici.