Maison neuve à
Le Pêchereau (36200) Référence : FR2415867_3

Prix du projet : Maison avec Terrain

prix 213 700 €

  • 4 pièces
  • 4 chambres
  • Surface maison 105 m2

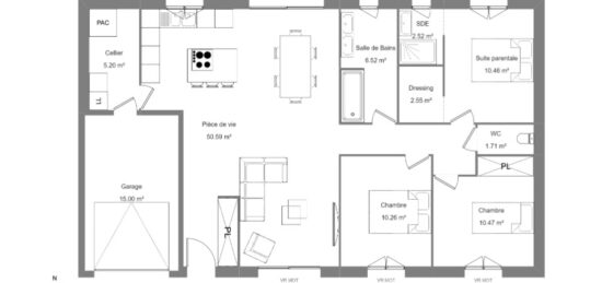
VENTE d'une maison de 4 pièces (105 m²) au Pêchereau
PROCHE DE CHÂTEAUROUX - MAISON 4 PIÈCES NEUVE
En vente à quelques kilomètres de Châteauroux, ayez le coup de coeur pour cette maison de 4 pièces de plain-pied de 105 m² au Pêchereau (36200). Elle est composée de quatre chambres, d'une cuisine et de deux salles de bains.
Le terrain de la propriété est de 749 m².
Cette maison est neuve.
L'École Élémentaire Jacques Prévert et l'École Maternelle Jacques Prévert se trouvent à moins de 10 minutes à pied. Niveau transports, il y a les gares Argenton-sur-Creuse et Chabenet à moins de 10 minutes en voiture. On trouve un accès à l'autoroute A20 à 4 km.
Son prix de vente est de 213 700 €.
Contactez notre agence (Franck RUBIO : °6-30-49-64-43) pour tout renseignement sur la maison ou sur les démarches à suivre. Maisons Bruno Petit MJB Châteauroux vous accompagne dans tous vos projets immobiliers et dans toutes vos démarches.

Mentions légales

Terrain proposé par un partenaire foncier selon disponibilités et autorisation de publicité au prix de 29 900 €. Hors droit d'enregistrement et frais de notaire. Terrain + Maison proposés au prix de 213 700 € (Hors branchements et raccordements, papiers peints, peintures, revêtement de sol dans les chambres. Tarif modifiable sans préavis). Etiquette énergie : A. Différents modèles disponibles pour ce terrain. Assurances et garanties du constructeur (RC professionnelle, décennale, dommage ouvrage, garantie de remboursement de l'acompte, livraison à prix et délai convenu) : https://www.maisons-brunopetit.fr/mentions-legales/.

Contactez l'agence de Châteauroux

02 54 22 66 24

    * Champs obligatoires

    Vos informations sont traitées par HEXAOM et transmises à un conseiller commercial qui vous contactera afin de répondre à votre demande. Les plans et images présentés sur notre site sont la propriété d’HEXAOM et ne peuvent pas être reproduits sans son accord. Pour retrouver notre politique de protection des données personnelles et exercer vos droits conformément à la « loi informatique et liberté » cliquez-ici.