Maison neuve à
Le Poinçonnet (36330) Référence : KG2297279_6

Prix du projet : Maison avec Terrain

prix 249 565 €

  • 6 pièces
  • 4 chambres
  • Surface maison 110 m2

Le Poinçonnet : maison T6 (110 m²) à vendre
IDÉALEMENT SITUÉE - MAISON 6 PIÈCES NEUVE
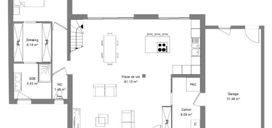
En vente à deux pas de Châteauroux, idéalement située dans Le Poinçonnet (36330), venez découvrir cette maison de 6 pièces de plain-pied de 110 m² et de 933 m² de terrain.
Son intérieur propose quatre chambres, une cuisine et deux salles de bains. Cette maison est neuve.
Cette maison se situe dans un quartier attractif. L'École Primaire François Rabelais, l'École Élémentaire Jacques Prévert et l'École Maternelle la Petite Fadette sont implantées à moins de 10 minutes à pied. Niveau transports, on trouve la gare Châteauroux à moins de 10 minutes en voiture. L'autoroute A20 et la nationale N151 sont accessibles à moins de 8 km. Il y a un tennis, deux boulangeries, trois commerces, une épicerie, deux boucheries-charcuteries et un bureau de poste à proximité du logement.
Elle est proposée à l'achat pour 249 565 €.
Contactez Kevin GRIMAUD (tél : 06-22-14-89-67) pour toute question sur la maison, sur les démarches à suivre ou sur les modalités de vente. Maisons Bruno Petit MJB Châteauroux est là pour vous accompagner à toutes les étapes de l'achat.

Mentions légales

Terrain proposé par un partenaire foncier selon disponibilités et autorisation de publicité au prix de 51 315 €. Hors droit d'enregistrement et frais de notaire. Terrain + Maison proposés au prix de 198 250 € (Hors branchements et raccordements, papiers peints, peintures, revêtement de sol dans les chambres. Tarif modifiable sans préavis). Etiquette énergie : A. Différents modèles disponibles pour ce terrain. Assurances et garanties du constructeur (RC professionnelle, décennale, dommage ouvrage, garantie de remboursement de l'acompte, livraison à prix et délai convenu) : https://www.maisons-brunopetit.fr/mentions-legales/.

Contactez l'agence de Châteauroux

02 54 22 66 24

    * Champs obligatoires

    Vos informations sont traitées par HEXAOM et transmises à un conseiller commercial qui vous contactera afin de répondre à votre demande. Les plans et images présentés sur notre site sont la propriété d’HEXAOM et ne peuvent pas être reproduits sans son accord. Pour retrouver notre politique de protection des données personnelles et exercer vos droits conformément à la « loi informatique et liberté » cliquez-ici.