Maison neuve à
Le Poinçonnet (36330) Référence : FR2301878_8

Prix du projet : Maison avec Terrain

prix 345 000 €

  • 4 pièces
  • 3 chambres
  • Surface maison 120 m2

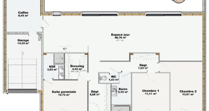
VENTE d'une maison de 4 pièces (120 m²) au Poinçonnet
EMPLACEMENT PRIVILÉGIÉ - MAISON 4 PIÈCES NEUVE
À 6 km de Châteauroux, nous sommes heureux de vous proposer cette maison de 4 pièces de plain-pied de 120 m² et de 761 m² de terrain bénéficiant d'un emplacement d'exception dans Le Poinçonnet (36330).
Elle comporte trois chambres, une cuisine et deux salles de bains. La maison est neuve.
La maison se trouve dans un secteur recherché. Il y a l'École Primaire François Rabelais, l'École Élémentaire Jacques Prévert et l'École Maternelle la Petite Fadette à moins de 10 minutes à pied. Côté transports, on trouve la gare Châteauroux à moins de 10 minutes en voiture. L'autoroute A20 et la nationale N151 sont accessibles à moins de 8 km. Il y a un tennis, deux boulangeries, trois commerces, une épicerie, un bureau de poste et deux boucheries-charcuteries dans les environs.
Elle est proposée à l'achat pour 345 000 €.
N'hésitez pas à prendre contact avec Franck RUBIO (tél : 06-30-49-64-43) pour obtenir de plus amples informations sur la maison ou sur les démarches à suivre.

Mentions légales

Terrain proposé par un partenaire foncier selon disponibilités et autorisation de publicité au prix de 63 000 €. Hors droit d'enregistrement et frais de notaire. Terrain + Maison proposés au prix de 282 000 € (Hors branchements et raccordements, papiers peints, peintures, revêtement de sol dans les chambres. Tarif modifiable sans préavis). Etiquette énergie : A. Différents modèles disponibles pour ce terrain. Assurances et garanties du constructeur (RC professionnelle, décennale, dommage ouvrage, garantie de remboursement de l'acompte, livraison à prix et délai convenu) : https://www.maisons-brunopetit.fr/mentions-legales/.

Contactez l'agence de Châteauroux

02 54 22 66 24

    * Champs obligatoires

    Vos informations sont traitées par HEXAOM et transmises à un conseiller commercial qui vous contactera afin de répondre à votre demande. Les plans et images présentés sur notre site sont la propriété d’HEXAOM et ne peuvent pas être reproduits sans son accord. Pour retrouver notre politique de protection des données personnelles et exercer vos droits conformément à la « loi informatique et liberté » cliquez-ici.