Maison neuve à
Le Poinçonnet (36330) Référence : FR2301878_11

Prix du projet : Maison avec Terrain

prix 346 800 €

  • 5 pièces
  • 4 chambres
  • Surface maison 120 m2

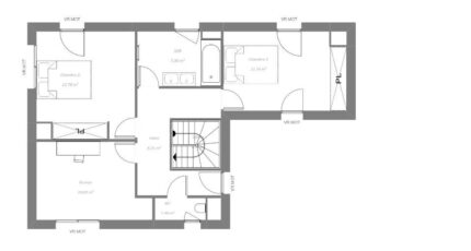
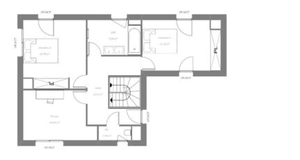
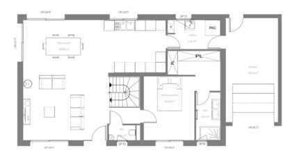
VENTE d'une maison de 5 pièces (120 m²) au Poinçonnet
EMPLACEMENT PRIVILÉGIÉ - MAISON 5 PIÈCES NEUVE
À quelques kilomètres de Châteauroux, Maisons Bruno Petit MJB Châteauroux vous propose cette maison de 5 pièces de 120 m² et de 761 m² de terrain bénéficiant d'un emplacement d'exception dans Le Poinçonnet (36330). Son intérieur dispose de quatre chambres, d'une cuisine et de deux salles de bains.
Cette maison possède 2 niveaux. Elle est neuve.
Cette maison se trouve dans un secteur attractif. L'École Primaire François Rabelais, l'École Élémentaire Jacques Prévert et l'École Maternelle la Petite Fadette sont implantées à moins de 10 minutes à pied. Niveau transports en commun, il y a la gare Châteauroux à moins de 10 minutes en voiture. L'autoroute A20 et la nationale N151 sont accessibles à moins de 8 km. On trouve un tennis, deux boulangeries, trois commerces, un bureau de poste, une épicerie et deux boucheries-charcuteries à quelques minutes à peine.
Son prix de vente est de 346 800 €.
Contactez Franck RUBIO (tél : 06-30-49-64-43) pour obtenir de plus amples renseignements sur la maison ou sur les démarches à suivre. Maisons Bruno Petit MJB Châteauroux vous accompagne dans tous vos projets immobiliers et à toutes les étapes de l'achat.

Mentions légales

Terrain proposé par un partenaire foncier selon disponibilités et autorisation de publicité au prix de 63 000 €. Hors droit d'enregistrement et frais de notaire. Terrain + Maison proposés au prix de 283 800 € (Hors branchements et raccordements, papiers peints, peintures, revêtement de sol dans les chambres. Tarif modifiable sans préavis). Etiquette énergie : A. Différents modèles disponibles pour ce terrain. Assurances et garanties du constructeur (RC professionnelle, décennale, dommage ouvrage, garantie de remboursement de l'acompte, livraison à prix et délai convenu) : https://www.maisons-brunopetit.fr/mentions-legales/.

Contactez l'agence de Châteauroux

02 54 22 66 24

    * Champs obligatoires

    Vos informations sont traitées par HEXAOM et transmises à un conseiller commercial qui vous contactera afin de répondre à votre demande. Les plans et images présentés sur notre site sont la propriété d’HEXAOM et ne peuvent pas être reproduits sans son accord. Pour retrouver notre politique de protection des données personnelles et exercer vos droits conformément à la « loi informatique et liberté » cliquez-ici.