Maison neuve à
Le Poinçonnet (36330) Référence : FR2415296_1

Prix du projet : Maison avec Terrain

prix 192 900 €

  • 3 pièces
  • 2 chambres
  • Surface maison 70 m2

VENTE d'une maison de 3 pièces (70 m²) au Poinçonnet
MAISON 3 PIÈCES NEUVE - PROCHE DE CHÂTEAUROUX
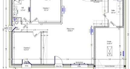
À vendre à 6 km de Châteauroux, Maisons Bruno Petit MJB Châteauroux vous présente cette maison de 3 pièces de plain-pied de 70 m² et de 780 m² de terrain au Poinçonnet (36330). Son intérieur compte deux chambres, une cuisine et une salle de bains.
La maison est neuve.
L'École Primaire François Rabelais, l'École Élémentaire Jacques Prévert et l'École Maternelle la Petite Fadette sont implantées à moins de 10 minutes à pied. Niveau transports, il y a la gare Châteauroux à moins de 10 minutes en voiture. L'autoroute A20 et la nationale N151 sont accessibles à moins de 8 km. On trouve un tennis, deux boulangeries, trois commerces, un bureau de poste, deux boucheries-charcuteries et une épicerie à proximité de la maison.
Elle est proposée à l'achat pour 192 900 €.
Prenez contact avec notre agence (Franck RUBIO : °6-30-49-64-43) pour toute question sur cette maison, sur les démarches à suivre ou sur les modalités de vente.

Mentions légales

Terrain proposé par un partenaire foncier selon disponibilités et autorisation de publicité au prix de 62 000 €. Hors droit d'enregistrement et frais de notaire. Terrain + Maison proposés au prix de 130 900 € (Hors branchements et raccordements, papiers peints, peintures, revêtement de sol dans les chambres. Tarif modifiable sans préavis). Etiquette énergie : A. Différents modèles disponibles pour ce terrain. Assurances et garanties du constructeur (RC professionnelle, décennale, dommage ouvrage, garantie de remboursement de l'acompte, livraison à prix et délai convenu) : https://www.maisons-brunopetit.fr/mentions-legales/.

Contactez l'agence de Châteauroux

02 54 22 66 24

    * Champs obligatoires

    Vos informations sont traitées par HEXAOM et transmises à un conseiller commercial qui vous contactera afin de répondre à votre demande. Les plans et images présentés sur notre site sont la propriété d’HEXAOM et ne peuvent pas être reproduits sans son accord. Pour retrouver notre politique de protection des données personnelles et exercer vos droits conformément à la « loi informatique et liberté » cliquez-ici.