Maison neuve à
Le Poinçonnet (36330) Référence : KG2430194_1

Prix du projet : Maison avec Terrain

prix 190 200 €

  • 3 pièces
  • 2 chambres
  • Surface maison 70 m2

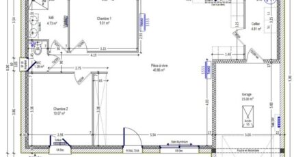
Le Poinçonnet : Projet de construction maison F3 (70 m²)
EMPLACEMENT PRIVILÉGIÉ - MAISON 3 PIÈCES NEUVE
À quelques kilomètres de Châteauroux, laissez vous charmer par cette maison de 3 pièces de plain-pied de 70 m² en vente, bénéficiant d'un emplacement d'exception dans Le Poinçonnet (36330).
Son intérieur dispose de deux chambres, d'une cuisine et d'une salle de bains. Cette maison est neuve.
Le terrain de la propriété s'étend sur 790 m².
La maison est située dans un quartier prisé. L'École Primaire François Rabelais, l'École Élémentaire Jacques Prévert et l'École Maternelle la Petite Fadette se trouvent à moins de 10 minutes à pied. Niveau transports, il y a la gare Châteauroux à moins de 10 minutes en voiture. L'autoroute A20 et la nationale N151 sont accessibles à moins de 8 km. On trouve un tennis, deux boulangeries, trois commerces, deux boucheries-charcuteries, une épicerie et un bureau de poste dans les environs.
Son prix de vente est de 190 200 €.
Contactez notre agence (GRIMAUD Kevin : *6-22-14-89-67) pour toute question sur la propriété, sur les démarches à suivre et sur les modalités de vente. Maisons Bruno Petit MJB Châteauroux vous accompagne à toutes les étapes de l'achat et dans tous vos projets immobiliers.

Mentions légales

Terrain proposé par un partenaire foncier selon disponibilités et autorisation de publicité au prix de 63 000 €. Hors droit d'enregistrement et frais de notaire. Terrain + Maison proposés au prix de 190 200 € (Hors branchements et raccordements, papiers peints, peintures, revêtement de sol dans les chambres. Tarif modifiable sans préavis). Etiquette énergie : A. Différents modèles disponibles pour ce terrain. Assurances et garanties du constructeur (RC professionnelle, décennale, dommage ouvrage, garantie de remboursement de l'acompte, livraison à prix et délai convenu) : https://www.maisons-brunopetit.fr/mentions-legales/.

Contactez l'agence de Châteauroux

02 54 22 66 24

    * Champs obligatoires

    Vos informations sont traitées par HEXAOM et transmises à un conseiller commercial qui vous contactera afin de répondre à votre demande. Les plans et images présentés sur notre site sont la propriété d’HEXAOM et ne peuvent pas être reproduits sans son accord. Pour retrouver notre politique de protection des données personnelles et exercer vos droits conformément à la « loi informatique et liberté » cliquez-ici.